Alkmaarseweg 222F

BEVERWIJK

nieuw

€ 800,- p/m

Type overige
Bouwjaar 1928

Omschrijving

TE HUUR:
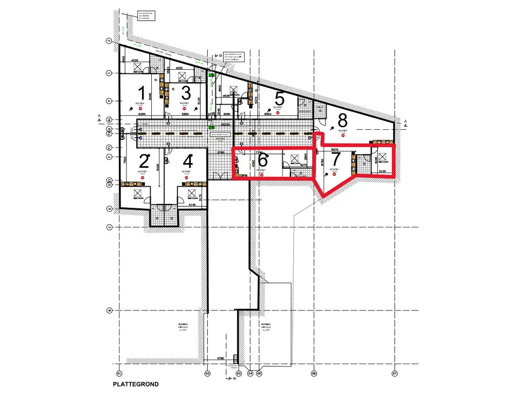
Bedrijfsruimte gelegen aan de Alkmaarseweg 222 te Beverwijk. Het betreft twee afzonderlijke units in een bedrijfsverzamelgebouw bestaande uit acht bedrijfsunits. Het gebouw is gelegen aan de rand van het centrum van Beverwijk en is toegankelijk via een afgesloten entreehal en een centrale binnenplaats.

De beschikbare units betreffen Alkmaarseweg 222 F en 222 G, beide met een oppervlakte van circa 50 m² (BVO). De units zijn geschikt voor onder meer kantoor- of dienstverlenende activiteiten.

INDELING / OPLEVERINGSNIVEAU:
Via de afgesloten entreehal bereikt men de centrale toegang van het gebouw. Vanuit de hal zijn meerdere bergingen bereikbaar en via een doorgang komt men op de centrale binnenplaats van het complex. Vanaf deze binnenplaats zijn de afzonderlijke units toegankelijk.

De units beschikken over een eigen entree vanaf de binnenplaats en zijn voorzien van een keuken, toilet, grote werkruimte en een separate werkruimte. Iedere unit beschikt over eigen meters.

GROOTTE:
Ca. 50 m² per unit

LOCATIE EN BEREIKBAARHEID:
Het object is gelegen aan de Alkmaarseweg in de gemeente Beverwijk, provincie Noord-Holland. De locatie bevindt zich aan de rand van het centrum en is goed bereikbaar per auto via de omliggende uitvalswegen. De aansluiting op de rijkswegen in de regio, waaronder de A9 en A22, bevindt zich op korte afstand.

PARKEREN:
Parkeren is mogelijk in de directe omgeving van het object.

BESTEMMING:
Volgens het vigerende bestemmingsplan geldt een bestemming die ruimte biedt voor bedrijfsactiviteiten. Huurder dient zelf te onderzoeken of het voorgenomen gebruik binnen het bestemmingsplan past. Nadere informatie is te verkrijgen via www.omgevingswet.overheid.nl.

OPLEVERING:
In huidige staat. Alkmaarseweg 222 G is per direct beschikbaar. Alkmaarseweg 222 F is beschikbaar per 01-04-2026.

HUURPRIJS:
€800,- per maand

HUURBETALING:
Per maand bij vooruitbetaling.

ZEKERHEIDSSTELLING:
Waarborgsom of bankgarantie ter grootte van drie maanden huurverplichting.

HUURTERMIJN:
Minimaal 2 jaar. In overleg.

VOORBEHOUD
– Goedkeuring en toestemming verhuurder;
– Positieve uitkomst krediettoets ter beoordeling van verhuurder.

VOORWAARDEN
Alle door Teer Bedrijfsmakelaars verstrekte informatie is uitsluitend bedoeld als uitnodiging tot nader overleg en het uitbrengen van een voorstel en is geheel vrijblijvend. Hoewel de informatie met zorg is samengesteld, kunnen hieraan geen rechten worden ontleend. Gegevens kunnen gebaseerd zijn op mondelinge informatie. Kandidaten hebben een eigen onderzoeksplicht.
Voor nadere informatie of het inplannen van een bezichtiging kunt u contact opnemen via telefoonnummer 0251-212102.

Lees meer

Kenmerken

Overdracht
Huurprijs
€ 800,- p/m
Status
beschikbaar
Aanvaarding
in overleg
Bouw
Hoofdbestemming
overige
Bouwjaar
1928
Bouwperiode
vanaf 1906 tm 1930
Oppervlakten en inhoud
Perceeloppervlakte
782 m²
Buitenruimte
Ligging
In woonwijk
Lees meer

Locatie

Vraag een bezichtiging aan