Appartement - type 4d, bouwnummer 41

ZWAAG

nieuw

€ 265.000,- v.o.n.

appartement
Bouwjaar 2025
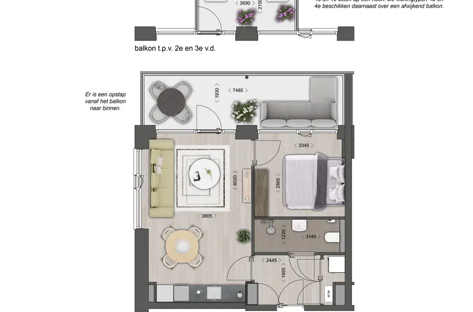
Woonoppervlakte 46 m²
Aantal slaapkamers 1

Omschrijving

Er bloeit iets moois in Zwaag... Rozenrijk. Een groot huis op een groene, waterrijke plek vlakbij de sportvelden. De wijk Rozenbuurt is autoluw, klimaatadaptief en biedt volop ruimte om te ontspannen, te spelen en elkaar te ontmoeten. Alle voorzieningen zijn dichtbij en de bereikbaarheid is uitstekend. Je woont hier centraal in het dorp, maar met het gevoel van ruimte en rust.


Type 4:

In dit tweekamerappartement woon je comfortabel en met een gevoel van ruimte. Of je u graag kleiner wilt wonen of voor het eerst samen gaat wonen. Het appartement is slim ingedeeld, licht en eigentijds afgewerkt, precies wat je zoekt als je waarde hecht aan rust, gemak en een prettige leefomgeving. De woonkamer met open keuken vormt een uitnodigende plek waar je kunt koken, eten en ontspannen in één vloeiende ruimte. Dankzij de grote ramen geniet je van veel daglicht en een mooi uitzicht op de omgeving. Vanuit de woonkamer stap je direct het balkon op, een fijne plek om buiten te genieten.

De slaapkamer biedt volop comfort en rust, met genoeg plek voor een kledingkast of werkhoek. De badkamer is modern en stijlvol uitgevoerd met een douche, wastafel en toilet. Dit appartement combineert modern woongenot met een doordachte indeling, een plek waar je elke dag met plezier thuiskomt. Kijk voor de verkoopvoorwaarden op de website: wonen-rozenrijk.nl


In dit project werkt de ontwikkelaar samen met Klimaatgarant, dat de bodemwarmte-installaties – waaronder bodembron, warmtepomp en boilervat – levert, installeert en in eigendom houdt. Kopers sluiten hiervoor een huur- en onderhoudsovereenkomst. Kopers kunnen er bovendien voor kiezen de installaties alsnog over te nemen, direct bij aankoop of tot 25 jaar na oplevering.


Kortom. Rozenrijk vind je een comfortabel, energiezuinig appartement dat past bij jouw leven.


Heb je interesse in dit mooie project? Meld je dan aan via de website WONEN-ROZENRIJK.NL




Lees meer

Kenmerken

Overdracht
Koopsom
€ 265.000,- v.o.n.
Status
beschikbaar
Bouw
Soort woning
appartement
Soort appartement
portiekflat
Aantal woonlagen
1
Woonlaag
3
Bouwvorm
nieuwbouw
Bouwjaar
2025
Bouwperiode
VANAF_2021_TM_2030
Open portiek
nee
Onderhoud binnen
uitstekend
Onderhoud buiten
uitstekend
Voorzieningen
mechanische ventilatie, lift
Isolatie
volledig geisoleerd
Energie
Energielabel
A++
Verwarming
vloerverwarming geheel, warmte terugwininstallatie
Oppervlakten en inhoud
Woonoppervlakte
46 m²
Indeling
Aantal kamers
2
Aantal slaapkamers
1
Buitenruimte
Ligging
aan rustige weg, in woonwijk
Garage / Schuur / Berging
Parkeergelegenheid
openbaar parkeren
Lees meer

Locatie

Meer weten?

We helpen je graag verder!

Nathalie Louter

Nathalie Louter

Beverwijk

NVM Register Makelaar en Taxateur | Vestigingsleider

Kan ik dit huis betalen?

Vraag meer informatie aan