Verrassend ruime eengezinswoning met vrij uitzicht
Gelegen aan de Benesserlaan 302 mogen wij deze deels gemoderniseerde tussenwoning met een fijne ligging in een rustige straat aanbieden. De woning is al voorzien van kunststof kozijnen met dubbel glas, een garage aan de voorzijde én vrij uitzicht aan de achterzijde. De basis is goed en het is aan de nieuwe bewoners om hier een echt thuis van te maken. Dankzij de centrale ligging zit je hier bijzonder gunstig: op loopafstand van de Jumbo, en met de A9 en het treinstation dichtbij ben je zo onderweg naar Alkmaar, Haarlem of Amsterdam.
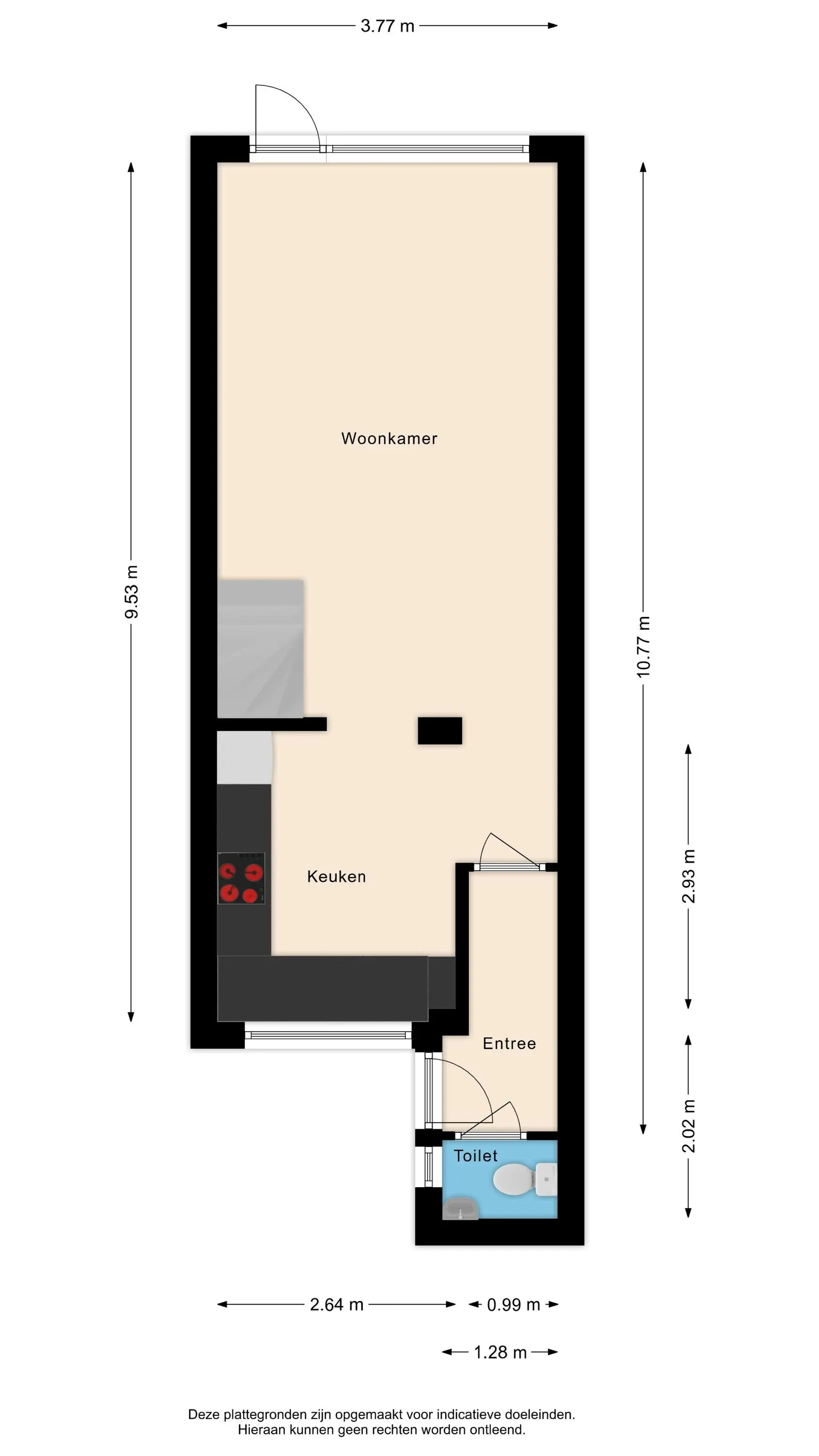
Via de zijentree kom je binnen in de hal, met toegang tot het toilet en de woonkamer. Aan de voorzijde van de woning bevindt zich de nette keuken, geplaatst in 2017, en voorzien van een inductiekookplaat, afzuigkap, vaatwasser, oven en ruimte voor een koel-vriescombinatie.
Aan de achterzijde stap je via de tuindeur zo de tuin in. Deze ligt op het noordwesten, wat betekent: zon tot in de avonduren! De tuin biedt uitzicht over achtergelegen tuintjes en landerijen, heerlijk vrij en groen. De inrichting van de tuin kun je nog volledig naar eigen smaak doen. Zie jij jezelf hier al zitten met een drankje bij zonsondergang?
Op de eerste verdieping vind je twee ruime slaapkamers en een de badkamer centraal op de verdieping. De badkamer is in 2019 vernieuwd en beschikt over een ruime inloopdouche, toilet, wastafelmeubel en aansluiting voor de wasmachine. Vanuit de achterste slaapkamer heb je opnieuw dat fijne vrije uitzicht.
Op zolder zijn nog eens twee slaapkamers en een overloop met de cv-ketel opstelling, wasmachine- en drogeraansluiting. Ideaal deze extra ruimte in het huis.
Kortom een fijne gezinswoning met goede basisvoorzieningen en volop potentie. De plek is rustig én centraal en biedt alle ruimte om er jouw droomhuis van te maken.
Bijzonderheden:
- Vrij uitzicht aan de achterzijde;
- Extra perceel bijgekocht achter de tuin (15 m2);
- Garage aan de voorzijde;
- Voldoende parkeergelegenheid in de straat;
- niet bewoond door verkoper clausule;
- ouderdom- en asbestclausule van toepassing;
Interesse in deze woning? Schakel direct jouw eigen NVM-aankoopmakelaar in. Jouw NVM-aankoopmakelaar komt op voor jouw belang en bespaart je tijd, geld en zorgen. Adressen van lokale en regionale NVM-aankoopmakelaars vind je ook op Funda. NVM Zeker weten.