Twee-onder-een-kapwoning met garage in Midwoud
Op een rustige en kindvriendelijke locatie in Midwoud vind je deze verzorgde twee-onder-een-kapwoning met ruime oprit, garage en zonnige tuin. De woning is keurig onderhouden en biedt alles wat je zoekt: comfort, praktische indeling en duurzame voorzieningen zoals zonnepanelen. Ideaal voor gezinnen die op zoek zijn naar een fijne woonomgeving met ruimte binnen en buiten.
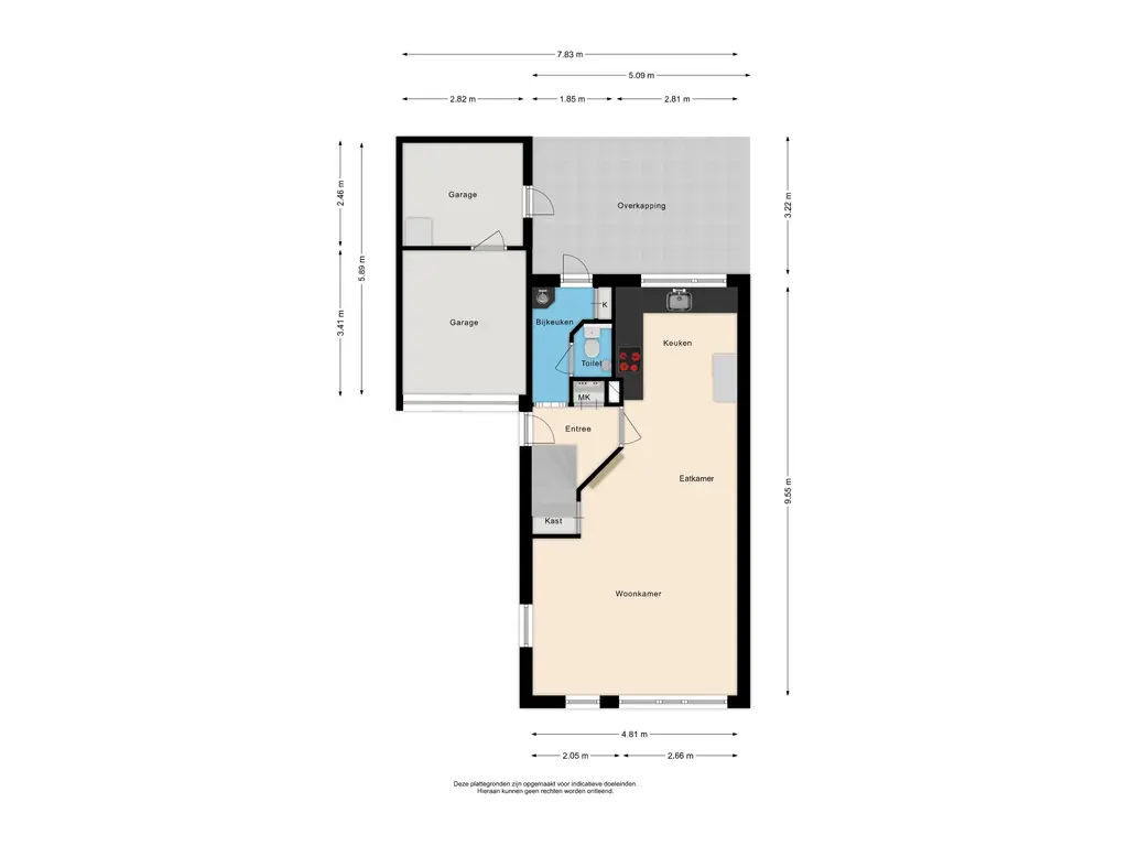
Je betreedt de woning via de vernieuwde voordeur (2022) en komt in de hal met toegang tot het toilet en de lichte woonkamer. De laminaatvloer loopt door over de gehele begane grond, wat zorgt voor een ruimtelijk geheel. De moderne keuken is voorzien van een inductiekookplaat, vaatwasser, koel-vriescombinatie, magnetron en oven.
Op de eerste verdieping bevinden zich momenteel twee slaapkamers, met de mogelijkheid om eenvoudig een derde slaapkamer te creëren. Alle kamers zijn voorzien van een nette laminaatvloer. De badkamer is praktisch ingedeeld en uitgerust met een douche, wastafel en toilet.
De tweede verdieping is bereikbaar via een vaste trap en biedt volop mogelijkheden. Hier bevindt zich de wasmachineaansluiting en extra bergruimte. Deze verdieping kan eenvoudig worden ingericht als wasruimte, hobbykamer of thuiswerkplek.
De woning beschikt over een ruime oprit waar je op eigen terrein kunt parkeren. De garage is voorzien van een elektrische deur, elektriciteit en water, ideaal voor de hobbyist of als extra bergruimte. Vanuit de garage of via een praktische zijtoegang is de verzorgde achtertuin bereikbaar, die is uitgerust met een overkapping en een vrijstaande schuur met elektra.
Verkoper vertelt: ''Met een beetje pijn in ons hart gaan wij deze mooie stek verlaten. De heerlijke tuin, fijne buren en het park er tegenover maakten dat we met volle 100% hebben genoten.''
Bijzonderheden:
- 3 slaapkamers;
- Zonnepanelen 7 stuks;
- Parkeren op eigen terrein;
- Betonnen vloeren;
- Voordeur vernieuwd (2022);
- Garage met elektrische deur.
Interesse in deze woning? Schakel direct jouw eigen NVM-aankoopmakelaar in. Jouw NVM-aankoopmakelaar komt op voor jouw belang en bespaart je tijd, geld en zorgen. Adressen van lokale en regionale NVM-aankoopmakelaars vind je ook op Funda. NVM Zeker weten.