Fijne tussenwoning
Deze verrassend ruime woning ligt in een geliefde, kindvriendelijke wijk en biedt niet alleen vier volwaardige slaapkamers, maar ook een frisse, recente afwerking en een uitzicht op groen dat nooit verveelt. Met een vernieuwde badkamer en toilet, zonnepanelen, kunststof kozijnen én een zonnige voortuin op het zuidwesten voelt dit huis comfortabel en toekomstbestendig. Zodra je het hofje inrijdt valt de bijna dorpse rust meteen op.
Geen gehaast verkeer en geen drukte.
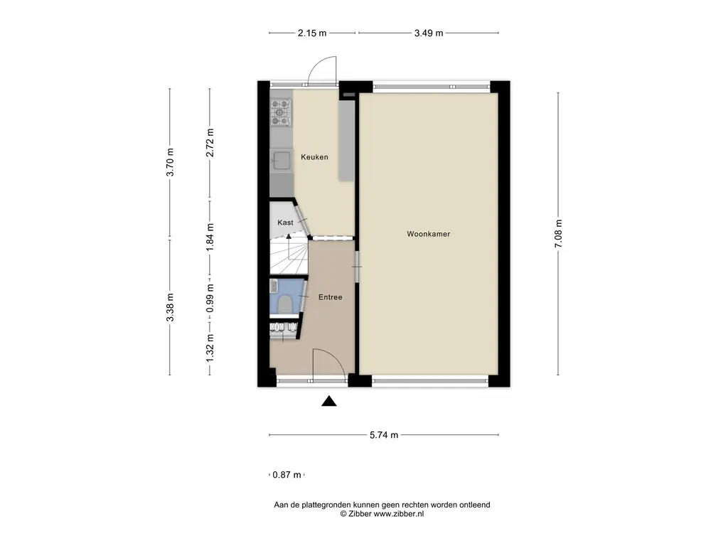
Binnen word je verwelkomd door een lichte hal. De lichte woonkamer is ruim en heeft uitzicht op een groen plantsoen. De dichte keuken met alle benodigde inbouwapparatuur en lekker veel kastruimte, sluit naadloos aan op de gang. Vanuit hier stap je ook zo de achtertuin in.
Loop je door naar boven, dan merk je hoe praktisch en ruim deze woning is opgezet. De drie slaapkamers op de eerste verdieping bieden alle ruimte voor een gezin, thuiswerken of die lang gekoesterde hobbykamer. De moderne badkamer en het toilet zijn recent vernieuwd en ademen een frisse sfeer. Hier begint je dag met een energieke douche en eindigt hij in alle rust. De dakkapel aan de achterzijde zorgt voor extra licht en ruimte, waardoor zelfs de bovenste verdieping groots aanvoelt. Hier vind je de keurig afgewerkte vierde slaapkamer. Achter de knieschotten is voldoende bergruimte voor spullen die je niet direct nodig hebt.
En dan buiten… De achtertuin, gelegen op het noordoosten, biedt verkoeling op warme dagen en is een heerlijke plek om in de ochtend rustig wakker te worden. Aan de voorzijde vind je juist de zon: een voortuin op het zuidwesten waar je tot in de avond kunt genieten van het licht, een goed glas wijn en het gevoel dat de dag nog even mag blijven hangen.
Zie jij jezelf hier al wonen? Wacht dan niet te lang. Woningen als deze, op zo’n fijne plek, zijn zeldzaam. Neem contact met ons op en ervaar het zelf, dit huis moet je voelen.
Bijzonderheden;
- Gelegen in een rustig hofje met uitzicht op groen
- Vier volwaardige slaapkamers, inclusief dakkapel aan de achterzijde
- Badkamer en toilet recent vernieuwd
- Voorzien van kunststof kozijnen met isolerende beglazing
- 8 zonnepanelen (2022) en energielabel B