Julianaweg 36

AKERSLOOT

€ 695.000,- k.k.

Type belegging
Bouwjaar 1900

Omschrijving

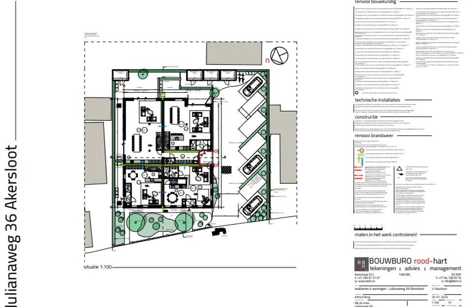
Stolpboerderij voor ontwikkeling van vier appartementen

Stel je een plek voor waar historie, karakter en ontwikkelpotentie elkaar raken. Precies dat is deze stolpboerderij uit 1930, een gemeentelijk monument waar momenteel een vergunningsprocedure loopt voor realisatie van vier volwaardige appartementen. Een kans die je maar zelden tegenkomt en die vooral voor beleggers c.q. aannemingsbedrijven een schot in de roos is: ruimte, uitstraling, authenticiteit en de vrijheid om jouw visie volledig tot leven te brengen.

Met vergunningen in procedure, uitgewerkte tekeningen en een royale mix van 145 m² oorspronkelijk woonoppervlak plus 204 m² inpandige ruimte, is dit object een ideaal canvas voor ontwikkelaars, beleggers of eindgebruikers die een unieke woon- of investeringspropositie zoeken.

Wil jij als eerste de mogelijkheden ontdekken? Plan vandaag nog een bezichtiging en zet de volgende stap richting jouw nieuwe project.

HOOFDPUNTEN:
Monumentale stolpboerderij uit 1930, volop karakter en uitstraling
In ontwikkeling tot 4 appartementen (vergunningstraject in afrondende fase, tekeningen beschikbaar)
App 1: 77,9 m² App 2 88,8 m² App 3 138,9 m² App 4 148,9 m²
Totaal ca. 349 m² (145 m² woonoppervlak + 204 m² inpandige ruimte)
Volledig casco: ideale uitgangspositie voor maatwerk

Met vergunningen die zich in de afrondende fase bevinden, volledig uitgewerkte tekeningen en een royale combinatie van 145 m² oorspronkelijk woonoppervlak plus 204 m² inpandige ruimte, vormt dit object een uitzonderlijk aantrekkelijk canvas voor ontwikkelaars, beleggers of eindgebruikers die op zoek zijn naar een onderscheidende woon- of investeringskans.

STATUS BOUWVERGUNNING
De aanvraag voor de planologische wijziging is ingediend en reeds door de gemeente goedgekeurd. Deze wijziging is aangevraagd via de zogenoemde BOPA-procedure (Bijzondere Omgevingsplanactiviteit), waarmee een afwijking van het bestemmingsplan mogelijk wordt gemaakt. Hierdoor kan de realisatie van vier appartementen plaatsvinden.

Ook de gemeentelijke welstandscommissie heeft formeel akkoord gegeven op het bijgevoegde bouwplan. De anterieure overeenkomst (samenwerkingsovereenkomst) met de gemeente ligt gereed voor ondertekening. Zodra deze overeenkomst is getekend, ontvangt de eigenaar het eerste deel van de bouwvergunning. Direct daarna kan de technische bouwaanvraag worden ingediend en kan de bouw daadwerkelijk starten.

In feite koopt u hiermee een project dat bouwvergunning-gereed is. U hoeft enkel nog de technische bouwaanvraag in te dienen, een proces van enkele weken waarbij u bovendien de mogelijkheid heeft om kleine aanpassingen in de bouwtekeningen door te voeren, indien gewenst.

KOSTEN BOUWVERGUNNING
Plankosten gemeente: € 9.944,- voor de planologische wijziging en de realisatie van vier appartementen. Dit bedrag dient bij ondertekening van de anterieure overeenkomst aan de gemeente te worden voldaan.
Sociaal waarborgfonds: Indien de koper kiest voor vier vrije sector appartementen zonder sociale huurwoning, dient aanvullend een bedrag van € 33.400,- te worden voldaan aan het gemeentelijke sociaal waarborgfonds. Deze keuze ligt volledig bij de koper.

MONUMENTALE BOUW MET TOEKOMSTVISIE
Er zijn gebouwen die je verstand aanspreken… en gebouwen die je raakt in je buik. Deze stolpboerderij behoort zonder twijfel tot die tweede categorie. Zodra je de erfgrens passeert voel je het: de geur van oud hout, de robuuste constructies, de verstilde charme van een historisch pand dat wacht op een nieuwe levensfase.

De boerderij is een gemeentelijk monument, maar vraagt om een volledige transformatie. Het casco is ruim, helder en uitnodigend: precies wat een serieuze ontwikkelaar graag ziet. Met vergunningsaanvraag in behandeling en volledige tekenpakketten klaarliggen, kun je snel schakelen zodra de formele goedkeuring binnenkomt. Of je nu vier appartementen wil realiseren of het geheel wil omtoveren tot één spectaculaire woonboerderij: de basis is er, de potentie immens.

Binnen ervaar je direct de enorme hoogte en de royale maatvoering. De oude draagconstructie vormt niet alleen een fraai architectonisch element, maar roept ook meteen ideeën op over mogelijke indelingen. De stilte is bijna tastbaar, alsof het pand zelf even ademhaalt. Door de open staat van het casco kun je letterlijk alle kanten op — van luxe appartementen tot een royale woning.

Het energielabel F geldt tot 2033, maar doordat alles nog ingericht moet worden, biedt dit juist volledige vrijheid om nieuwe verduurzaming direct mee te nemen. Zo bouw je aan een toekomstbestendig geheel dat voldoet aan moderne standaarden op het gebied van isolatie, installaties en energiegebruik.

De locatie vormt een combinatie van rust, karakter en bereikbaarheid. Hier profiteer je van de dorpse charme, terwijl uitvalswegen richting Alkmaar, andere steden en strand/duinen op korte afstand liggen.

INSTALLATIES & TECHNIEK
Het pand beschikt over een meterkast met elektrameter, gasmeter en watermeter, maar verder zijn er geen werkende installaties aanwezig.

DIT IS JOUW KANS!
Een plek als deze vind je niet elke dag. Een monumentale stolp, een royale maatvoering, ontwikkelvrijheid, een sterk verhaal en een locatie die uitnodigt tot wonen, beleven en investeren. Ruik de historie, zie de potentie, voel de ruimte en laat je verbeelding het werk doen.

Ben jij klaar om deze unieke kans te verzilveren? Bel ons direct voor een bezichtiging — voordat iemand anders je voor is.

Lees meer

Kenmerken

Overdracht
Vraagprijs
€ 695.000,- k.k.
Status
beschikbaar
Aanvaarding
in overleg
Bouw
Hoofdbestemming
belegging
Bouwjaar
1900
Oppervlakten en inhoud
Perceeloppervlakte
821 m²
Woonruimte
Woonruimte types
WOONHUIS
Aantal wonen leegstand
1
Oppervlakte
145 m²
Adres tonen
Ja
Regios
noord holland
Aantal zelfstandig verhuur
1
Bruto aanvang rendement
7
Buitenruimte
Ligging
In woonwijk
Lees meer

Locatie

Meer weten?

We helpen je graag verder!

Rob Burger

Rob Burger

Bedrijfsmakelaardij

NVM Register Makelaar en Taxateur | Partner

Vraag een bezichtiging aan