Kanaaldijk 296B 4

ALKMAAR

€ 400.000,- k.k.

appartement
Bouwjaar 2025
Woonoppervlakte 64 m²
Aantal slaapkamers 2

Omschrijving

NIEUWBOUW ZONDER TE WACHTEN! OPLEVERING 2026
GEWILD PROJECT BUITENVAART 1e FASE INCL PARKEERPLAATS

Te koop: modern 3-kamer nieuwbouwappartement met balkon

In dit moderne nieuwbouwappartement woon je straks comfortabel, energiezuinig en helemaal klaar voor de toekomst. Het appartement ligt op de 1e verdieping en biedt alles voor een ontspannen woonstijl: een lichte woonkamer met open keuken, twee slaapkamers en een fijn balkon waar je heerlijk buiten kunt zitten.

De woning maakt deel uit van een duurzaam nieuwbouwproject dat momenteel in aanbouw is. De verwachte oplevering is Q4 2026. Een unieke kans om nu al eigenaar te worden van een gloednieuw appartement nog vóór oplevering!

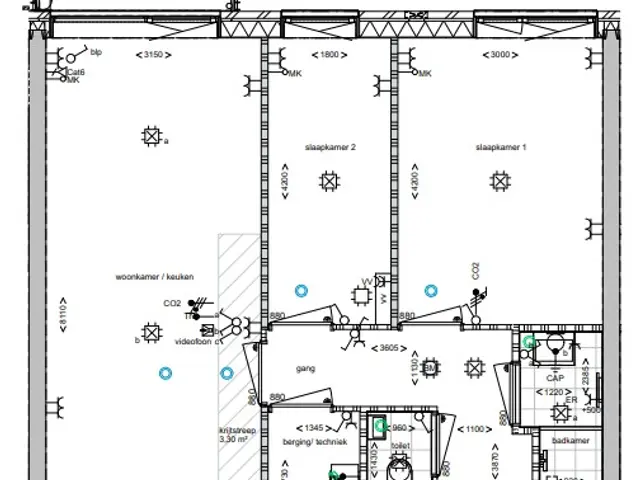
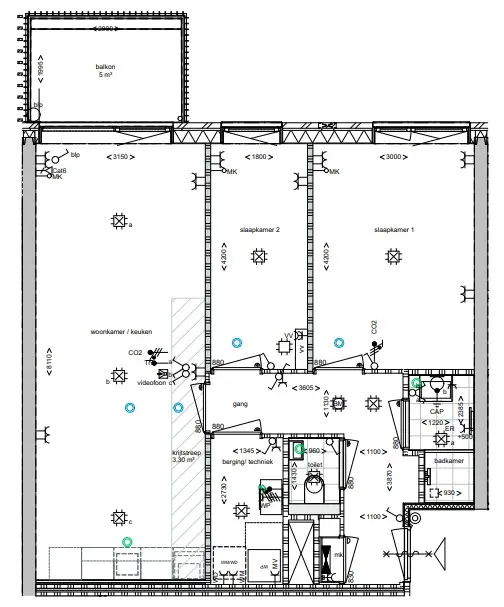
Wonen met comfort
Via de gezamenlijke entree kom je binnen in de hal van het appartement. Hier bevinden zich direct de badkamer, het toilet en twee slaapkamers. Aan het einde van de hal stap je de lichte woonkamer met open keuken binnen. De keuken kun je nog volledig naar eigen smaak inrichten, ideaal om je toekomstige thuis een persoonlijke touch te geven. De woonkamer biedt voldoende ruimte voor een gezellige zithoek en eettafel. Vanuit hier stap je zo het balkon op, waar je in de zomermaanden fijn kunt genieten van de buitenlucht.

In de technische ruimte is plaats voor de wasmachine en extra bergruimte. Bovendien beschikt het appartement over een eigen parkeerplaats in de kelder.

Duurzaam en energiezuinig
De woning is voorzien van vloerverwarming in alle ruimtes en wordt verwarmd met een bodemwarmtepomp. Zo geniet je van een prettig binnenklimaat, lagere energiekosten en woon je volledig toekomstgericht.
Let op: de warmtepomp is niet standaard bij de koopsom inbegrepen. Als koper kun je kiezen of je deze wilt kopen of huren. Zodra de verkoopdocumentatie beschikbaar is, ontvang je de informatiefolder van Eneco.
Warmtepomp: Informatie hierover is op te vragen bij de makelaar.

Belangrijk om te weten:
- Verwachte oplevering: Q4 2026
- Nieuwbouwproject verkoop door huidige koper (doorverkoop in aanbouw)
- Concept servicekosten VvE: appartement: € 144,41 parkeerplaats: € 23,85 per maand
- 3 kamers (2 slaapkamers)
- Balkon op de 1e verdieping
- Vloerverwarming en balansventilatie
- Woning is incl. sanitair
- Gasloos met bodemwarmtepomp via Eneco ( huur of koop)
- (Voorlopig) energielabel is A+++
- Eigen parkeerplaats in stallingsgarage aanwezig
- Projectnotaris: Erkamp Boot en Willemsen

Een prachtig nieuwbouwappartement waar je straks direct kunt genieten van comfortabel wonen, zonder nog jaren te hoeven wachten op de bouwstart. Wij maken graag een afspraak op kantoor, zodat we alle stukken kunnen doornemen.

Lees meer

Kenmerken

Overdracht
Vraagprijs
€ 400.000,- k.k.
Status
beschikbaar
Aanvaarding
in overleg
VvE checklist
Inschrijving KVK
Ja
Jaarlijkse vergadering
Ja
Periodieke bijdrage
Ja (168,26 per maand)
Reservefonds aanwezig
Ja
Onderhoudsplan
Ja
Opstalverzekering
Ja
Bouw
Soort woning
appartement
Soort appartement
portiekflat
Aantal woonlagen
1
Woonlaag
1
Bouwvorm
nieuwbouw
Bouwjaar
2025
Open portiek
nee
Huidige bestemming
woonruimte
Onderhoud binnen
uitstekend
Onderhoud buiten
uitstekend
Voorzieningen
mechanische ventilatie, lift, balansventilatie
Isolatie
volledig geisoleerd
Energie
Energielabel
A+++
Verwarming
vloerverwarming geheel, warmtepomp, warmte terugwininstallatie
Oppervlakten en inhoud
Woonoppervlakte
64 m²
Buitenruimte oppervlakte
5 m²
Indeling
Aantal kamers
3
Aantal slaapkamers
2
Buitenruimte
Ligging
in woonwijk, vrij uitzicht
Garage / Schuur / Berging
Garage
parkeerplaats
Parkeergelegenheid
openbaar parkeren, parkeergarage
Lees meer

Locatie

Meer weten?

We helpen je graag verder!

Nathalie Louter

Nathalie Louter

Beverwijk

NVM Register Makelaar en Taxateur | Vestigingsleider

Kan ik dit huis betalen?

Vraag een bezichtiging aan