Maasstraat 12

ALKMAAR

verkocht

verkocht

woonhuis tussenwoning
Bouwjaar 1972
Woonoppervlakte 127 m²
Aantal slaapkamers 4

Omschrijving

Uitgebouwde 5-kamerwoning op korte afstand van de binnenstad

De korte afstand tot de binnenstad van Alkmaar maakt de ligging perfect. We kunnen hier overigens gerust spreken van dé ideale gezinswoning. Met een groenstrook direct voor de deur is het wel zo veilig voor de kinderen. Kenmerkend voor dit type woning zijn de zeer ruime (slaap)kamers op de 1e verdieping (lees= ca. 9 m2, 11 m2 en 16 m2, voorzien van ideale vaste kasten én rechte wanden). U bent een klusser…dat komt goed uit. Deze woning dient cosmetisch gemoderniseerd te worden, maar de grootste klus, de uitbouw op de begane grond, is al gerealiseerd.

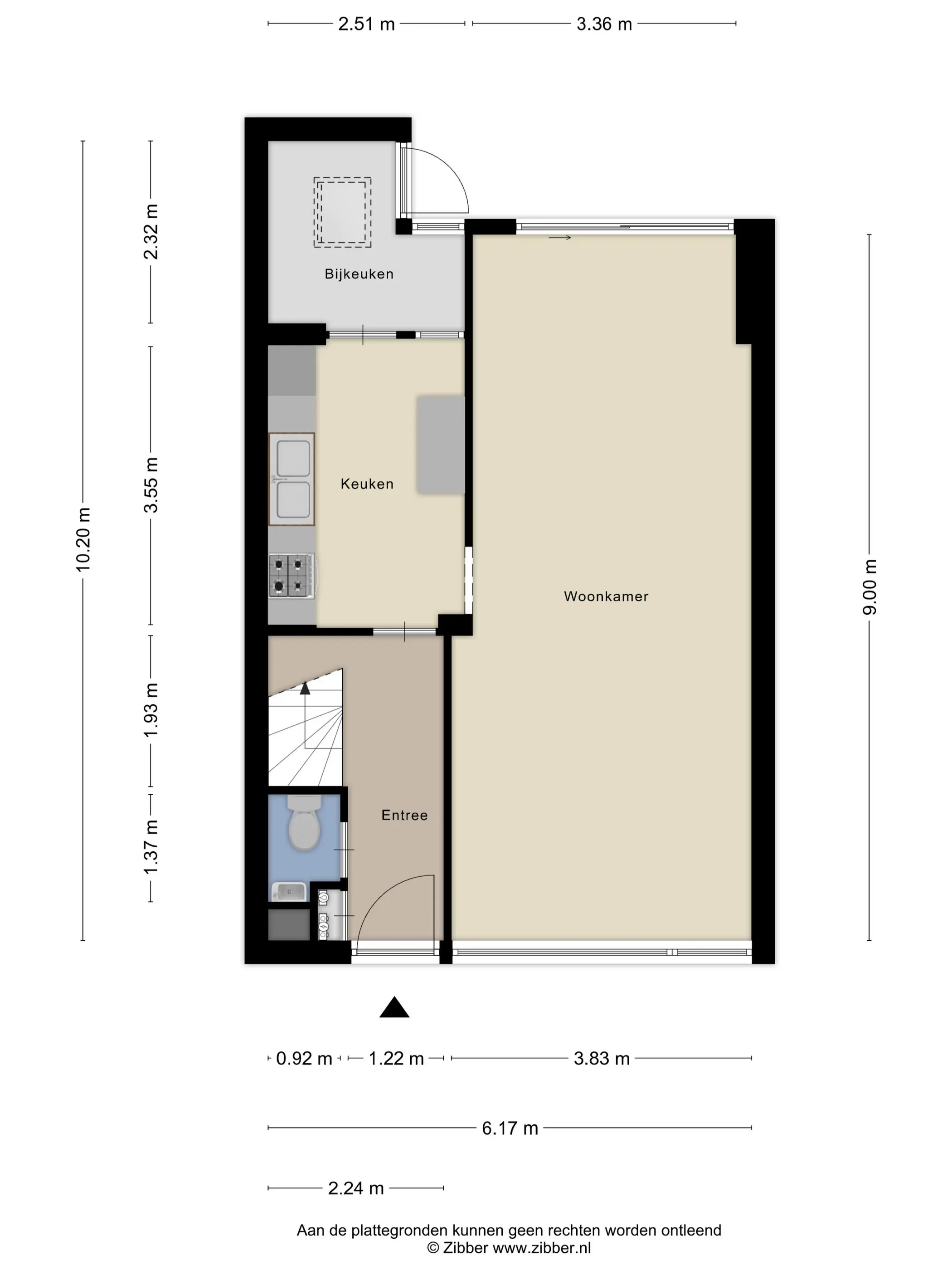
Indeling: entree/hal met o.a. garderobe en trapopgang naar de 1e verdieping. Toiletruimte. Goed bemeten doorzonkamer met een uitstekende lichtinval (lengte ca. 9 meter) en voorzien van een schuifpui. De keuken beschikt over een eenvoudige opstelling met ideale bijkeuken en ook van hieruit heeft u toegang tot de achtertuin.1e verdieping: overloop met vaste trap naar de 2e verdieping. 3-tal goed bemeten slaapkamers met vaste kasten. Ruime maar eenvoudige badkamer. 2e verdieping: flinke voorzolder met o.a. de opstelling voor het witgoed alsmede de 4e (slaap)kamer voorzien van een dakkapel.

Bijzonderheden:
- op loopafstand van het vernieuwde winkelcentrum Polderhof
- nabij ring Alkmaar richting Haarlem/Amsterdam
- 1e eigenaar
- energielabel C
- 2021 buitenschilderwerk professioneel uitgevoerd
- 2e verdieping voorzien van dakkapel
- c.v.-installatie 2020
- op de begane grond uitgebouwd over de volle breedte inclusief bijkeuken
- ideale gezinswoning
- de diepe achtertuin staat garant voor een maximale bezonning
- rechte wanden 1e verdieping = gebruiksvriendelijk
- gunstig gelegen t.o.v. de directe achterburen
- groenstrook direct voor het huis

Diverse kosten:
Onroerend zaak belasting: € 240,- per jaar
Waterschapslasten: € 364,- per jaar
Rioolrecht + afvalstoffenheffing: € 456,- per jaar

Interesse in dit huis? Schakel direct uw eigen NVM-aankoopmakelaar in. Uw NVM-aankoopmakelaar komt op voor úw belang en bespaart u tijd, geld en zorgen. Adressen van collega NVM-aankoopmakelaars vindt u op Funda.

Lees meer

Kenmerken

Overdracht
Status
verkocht
Aanvaarding
in overleg
Bouw
Soort woning
woonhuis
Soort woonhuis
eengezinswoning
Type woonhuis
tussenwoning
Aantal woonlagen
3
Bouwvorm
bestaande bouw
Bouwjaar
1972
Huidige bestemming
woonruimte
Onderhoud binnen
redelijk_tot_goed
Onderhoud buiten
goed
Voorzieningen
buitenzonwering, schuifpui
Isolatie
dakisolatie, gedeeltelijk dubbel glas
Energie
Energielabel
C
Verwarming
cv ketel
Warm water
cv ketel
C.V.-ketel
Intergas HRE (gas gestookt combiketel, uit 2020, eigendom)
Oppervlakten en inhoud
Woonoppervlakte
127 m²
Perceeloppervlakte
162 m²
Inhoud
450 m³
Bergruimte oppervlakte
6 m²
Indeling
Aantal kamers
5
Aantal slaapkamers
4
Buitenruimte
Ligging
in woonwijk
Tuin
achtertuin met een oppervlakte van 58 m²
Garage / Schuur / Berging
Garage
geen garage
Parkeergelegenheid
openbaar parkeren
Schuur/berging
vrijstaand steen
Lees meer

Locatie

Meer weten?

We helpen je graag verder!

Rob Ham

Rob Ham

Alkmaar

NVM Register Makelaar en Taxateur | Vestigingsleider | Partner

Kan ik dit huis betalen?

Vraag een bezichtiging aan