Markt 58

BEVERWIJK

verkocht

verkocht

Type kantoorruimte
Bouwjaar 1987
Oppervlakte 500 m²

Omschrijving

Uniek object te koop in hartje Beverwijk: kantoorruimte met magazijn en lab, perfect voor herontwikkeling

Een unieke locatie met karakter én potentie
Stel je voor: een bedrijfsruimte van 500 m² midden in het centrum van Beverwijk, gelegen op een zichtlocatie aan de levendige Markt. Dit voormalige kantoor van een zorgorganisatie – compleet met laboratorium (clean room), kantoorruimtes en magazijn met overheaddeur – biedt jou als ondernemer een zee aan mogelijkheden. Of je nu op zoek bent naar een plek voor jouw zorgorganisatie, creatief bureau, innovatieve start-up of op zoek naar een mooie herontwikkeling, dit object biedt een stevige basis voor groei en toekomst.

Slim ingedeeld voor praktisch gebruik
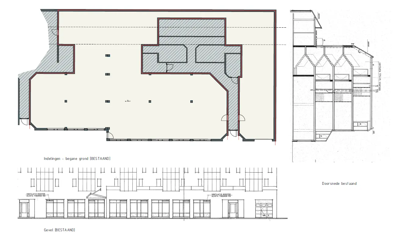
De bedrijfsruimte beschikt over een heldere indeling met diverse kantoorunits, een magazijnruimte voorzien van overheaddeur, en een voormalig laboratorium – uitermate geschikt als clean room of als inspiratie voor een andere invulling. De totale oppervlakte bedraagt circa 500 m² en is flexibel inzetbaar. Of je nu een kantoor met opslagruimte zoekt of een locatie voor een medische of onderzoeksfunctie, je vindt hier volop mogelijkheden.

Voor jou als ondernemer speelt duurzaamheid een belangrijke rol.
Het pand beschikt over energielabel E, geldig tot 29 november 2033. Hoewel er nog ruimte is voor verduurzaming, biedt dit juist kansen om het gebouw helemaal naar jouw duurzame visie te transformeren. Door slimme investeringen kun je niet alleen kosten besparen, maar ook voldoen aan de toekomstgerichte eisen van jouw klanten of gebruikers.

Uitstekend bereikbaar, parkeren voor de deur
De locatie is ideaal: in het hart van Beverwijk, omringd door winkels, horeca en voorzieningen. Met de nabijgelegen A22 en A9 ben je snel onderweg richting Haarlem, Alkmaar of Amsterdam. Ook met het openbaar vervoer is het pand uitstekend bereikbaar; het NS-station Beverwijk ligt op loopafstand. Voor bezoekers en medewerkers is er volop parkeergelegenheid direct voor de deur op het ruime parkeerterrein (betaald of met vergunning).

Ontwikkellocatie met potentie voor herontwikkeling naar wonen
Dit object biedt een uitstekende kans voor ontwikkelaars en beleggers. Op basis van een ingediend schetsplan (zie de foto's met het plan) heeft de gemeente positief gereageerd op de mogelijkheden voor herontwikkeling van het pand naar een woonbestemming. De locatie en de bestaande bebouwing maken het een interessante propositie voor transformatie naar bijvoorbeeld 5 appartementen.

In de presentatie treft u een schetsplan om een goed beeld te krijgen van de potentie. Het vervolgtraject, inclusief de aanvraag van de benodigde vergunningen en het doorlopen van de herbestemmingsprocedure, ligt bij de kopende partij.

Interesse? Neem contact met ons op!
Ben je benieuwd naar de mogelijkheden van deze bedrijfsruimte? Neem vandaag nog contact met ons op voor een bezichtiging en ontdek hoe jouw onderneming hier perfect tot zijn recht komt.
Er zijn bezichtingsmomenten op woensdag 10 september van 10.30-12.00 uur en op dinsdag 16 september van 15.00-17.00 uur. Graag van te voren aanmelden!
Sluiting inschrijving donderdag 2 oktober 12.00 uur

Bijzonderheden:
- Circa 500 m² kantoorruimte met magazijn en clean room/lab;
- Servicekosten bedragen € 231,59 per maand;
- Gelegen aan de Markt 58 in het centrum van Beverwijk;
- Voorzien van overheaddeur;
- Voormalig onderzoeksinstituut, geschikt voor herontwikkeling;
- Energielabel E, geldig tot 29-11-2033;
- projectnotaris Batenburg in Beverwijk;
- Bestemming conform bestemmingsplan;
- Vereniging van Eigenaren van toepassing;
- Grote parkeergelegenheid voor de deur (betaald/vergunning);
- Nabij snelwegen A22 en A9, en station Beverwijk.

Lees meer

Kenmerken

Overdracht
Status
verkocht
Aanvaarding
per datum
Bouw
Hoofdbestemming
kantoorruimte
Bouwjaar
1987
Kantoorruimte
Oppervlakte
500 m²
Verdiepingen
1
Voorzieningen
Inbouwarmaturen, systeemplafond
Buitenruimte
Ligging
Winkelgebied stadscentrum, in woonwijk
Lees meer

Locatie

Meer weten?

We helpen je graag verder!

Rob Burger

Rob Burger

Bedrijfsmakelaardij

NVM Register Makelaar en Taxateur | Partner

Vraag een bezichtiging aan