Dit object heeft een inhoud van 233 m³, een gebruiksoppervlakte van 90m² en een tuin van 50m²!
Instapklare bovenwoning in Stompetoren met eigen tuin!
Ben je op zoek naar een instapklare bovenwoning van 90m² gebruiksoppervlakte met een eigen tuin, berging én parkeergelegenheid voor de deur? Dan is Noordervaart 65A in Stompetoren de woning die je zoekt. Deze recent opgeknapte en gemoderniseerde woning combineert comfortabel wonen met een rustige, dorpse omgeving op korte afstand van Alkmaar. De woning is goed geïsoleerd en beschikt over energielabel B.
De woning is de afgelopen periode vernieuwd, waarbij onder andere de keuken, badkamer en het toilet 2026 zijn gerenoveerd. Hierdoor woon je hier in een frisse, moderne woning waar je eigenlijk alleen nog maar je spullen hoeft neer te zetten.
Via de buitentrap bereik je de entree van de woning. Vanuit de entree stap je direct de lichte en ruime woonkamer binnen. Hier is voldoende plek voor een gezellige zithoek én een eethoek waar je met vrienden of familie kunt zitten.
De moderne open keuken is strak afgewerkt. De keuken beschikt over een praktische indeling met een kookeiland/bar en is voorzien van diverse inbouwapparatuur.
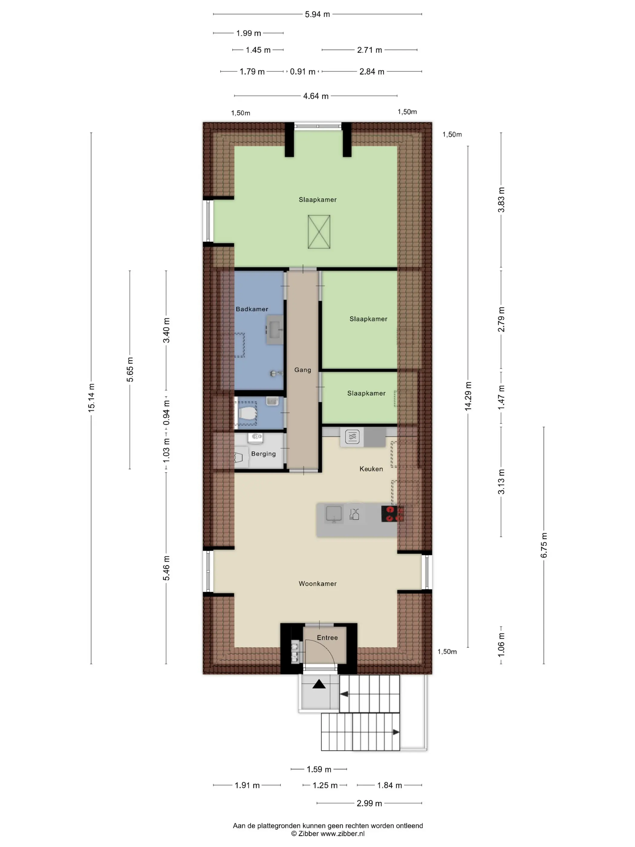
Via de woonkamer bereik je de gang, die toegang geeft tot de overige ruimtes van de woning. Hier bevinden zich het separate toilet, een praktische berging met onder andere de aansluitingen voor de wasmachine en extra opbergruimte, en de badkamer (2026). De badkamer is modern afgewerkt en voorzien van een douche en wastafel. Verder vind je hier drie kamers. Twee slaapkamers die uitstekend geschikt zijn als hoofdslaapkamer en logeer- of kinderkamer. Daarnaast is er nog een extra kamer, ideaal als werkkamer, hobbyruimte of kleedkamer. Tevens geeft de hoofdslaapkamer toegang tot een handige vliering, ideaal voor extra opslag.
Een groot pluspunt van deze woning is de eigen tuin, waar je heerlijk kunt ontspannen, buiten kunt eten of genieten van de zon. Daarnaast beschikt de woning over een praktische externe berging, ideaal voor fietsen, gereedschap of tuinmeubelen.
De woning ligt in het gezellige dorp Stompetoren, waar je profiteert van rust en ruimte, maar toch dicht bij de stad woont. Voor de dagelijkse boodschappen hoef je niet ver te lopen want de winkels zijn te vinden op 200 meter afstand.
Binnen ongeveer 20 minuten fietsen sta je in het centrum van Alkmaar, met zijn gezellige terrassen, winkels en restaurants. Ook uitvalswegen richting Alkmaar, Heerhugowaard en Amsterdam zijn goed bereikbaar.
Kenmerken:
- Eigen tuin van 50m2;
- Eigen berging;
- 90m2 gebruiksoppervlakte;
- Parkeren voor de deur;
- 2 slaapkamers + 1 werkkamer;
- Recent opgeknapt en nog ongebruikt;
- Keuken, badkamer en toilet vernieuwd in 2026;
- Schilderwerk buitenom 2025/2026;
- Rustige ligging in het dorp Stompetoren;
- De ring van Alkmaar binnen 3 minuten rijden;
- Niet-zelfbewoningsclausule van toepassing;
- VVE is in oprichting.
Interesse in deze woning? Schakel direct jouw eigen NVM-aankoopmakelaar in. Jouw NVM-aankoopmakelaar komt op voor jouw belang en bespaart je tijd, geld en zorgen. Adressen van lokale en regionale NVM-aankoopmakelaars vind je ook op Funda.