Noorderwijkweg 89

BEVERWIJK

verkocht

verkocht

woonhuis vrijstaande woning
Bouwjaar 1917
Woonoppervlakte 93 m²
Aantal slaapkamers 2

Omschrijving

Instapklare vrijstaande woning in de populaire Bomenbuurt!

Ben je op zoek naar een goed onderhouden, duurzame en instapklare woning met veel sfeer? Dan is deze prachtige vrijstaande woning in de Bomenbuurt van Beverwijk absoluut een bezichtiging waard!

De woning ligt in een rustige, groene en geliefde wijk, op loopafstand van het centrum van Beverwijk. Binnen enkele minuten ben je op de A22, waardoor steden als Amsterdam, Haarlem en Alkmaar uitstekend bereikbaar zijn. Bovendien liggen de duinen en het strand op korte fietsafstand, en in de nabije omgeving vind je scholen, winkels, horeca en het NS-station. Met 15 zonnepanelen is deze woning niet alleen sfeervol, maar ook energiezuinig. Het huis is goed onderhouden en direct te betrekken.

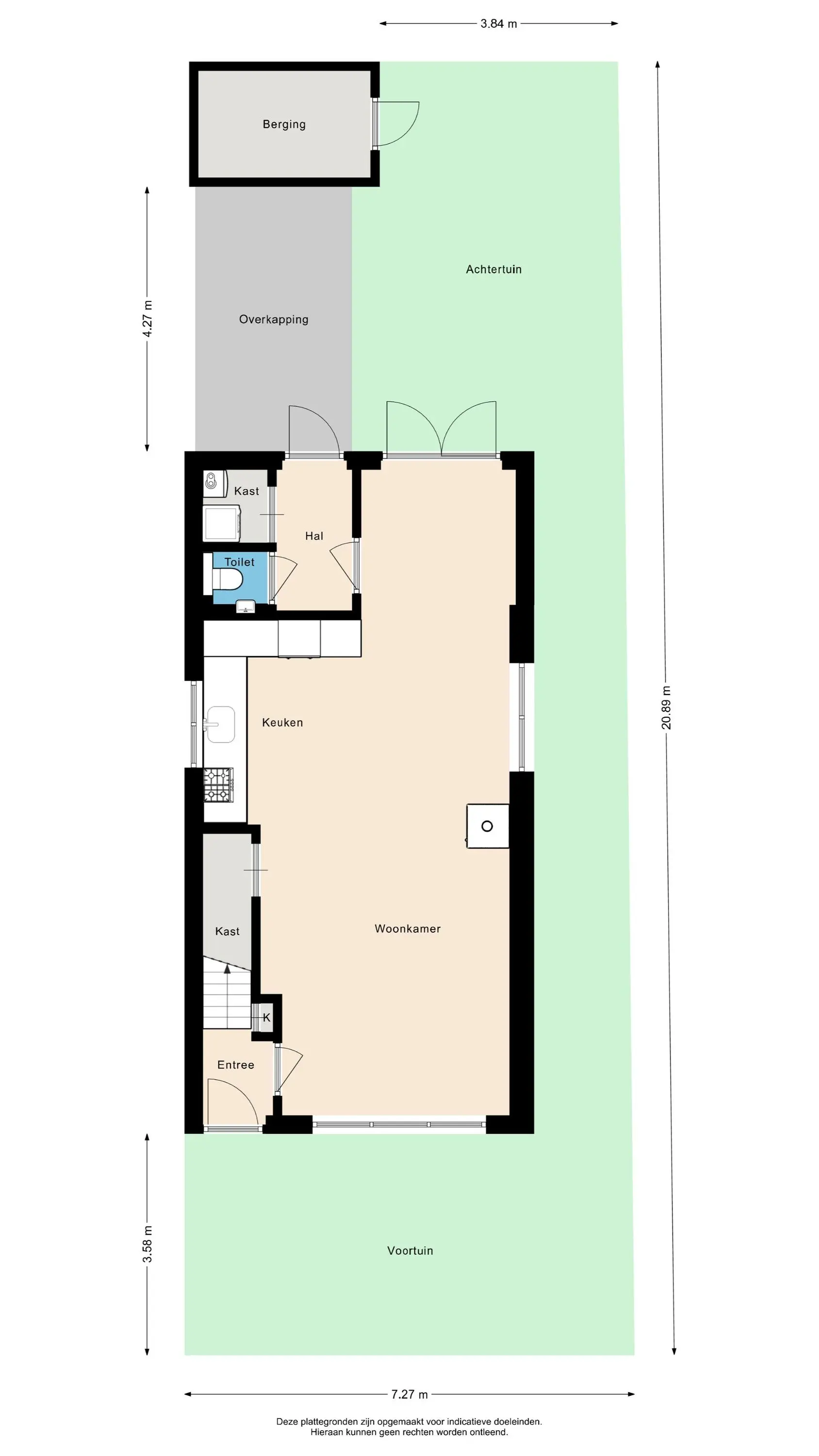
Bij binnenkomst valt direct op hoe licht en open de woning aanvoelt. De sfeervolle woonkamer met grote raampartijen en een houthaard vormt het hart van het huis en nodigt uit tot ontspannen avonden. De moderne keuken is van alle gemakken voorzien, inclusief diverse inbouwapparatuur. Dankzij de royale opzet is er voldoende ruimte voor zowel een gezellige zithoek als eethoek. Vanuit de eethoek bereik je via de schuifpui de achtertuin. Verder vind je op de begane grond een separaat toilet en een handige wasruimte met aansluitingen voor wasmachine en droger.

Op de eerste verdieping bevinden zich twee goed bemeten slaapkamers, waarvan één toegang heeft tot een gezellig terras. De kamers zijn licht en ideaal te gebruiken als slaap-, werk- of kinderkamer. De moderne badkamer is praktisch ingedeeld en voorzien van een inloopdouche, toilet en wastafelmeubel met twee waskommen.

De tuin is gelegen op het noordwesten en is een fijne plek om te genieten van buiten. Dankzij de overkapping met heaters kun je hier zowel in de zomer als in de winter heerlijk vertoeven. Verder beschikt de tuin over een handige berging, ideaal voor het stallen van fietsen of het opbergen van spullen.

Kortom: een gezellig, licht en duurzaam vrijstaand huis in een fijne buurt, met een royale tuin en alles dichtbij wat je nodig hebt!

Bijzonderheden:
- Vloerverwarming op de begane grond;
- Voorzien van 15 zonnepanelen;
- Energielabel A;
- Achtertuin gelegen op het noordwesten;
- Overkapping met heaters en buitendouche;
- Asbest- en ouderdomsclausule van toepassing;
- Voorkeur oplevering vanuit verkopers is eind september;
- Notariskeuze aan koper, mits in omgeving Beverwijk.

Interesse in deze vrijstaande woning? Schakel direct jouw eigen NVM-aankoopmakelaar in. Jouw NVM-aankoopmakelaar komt op voor jouw belang en bespaart je tijd, geld en zorgen. Adressen van lokale en regionale NVM-aankoopmakelaars vind je ook op Funda. NVM Zeker weten.

Lees meer

Kenmerken

Overdracht
Status
verkocht
Aanvaarding
in overleg
Bouw
Soort woning
woonhuis
Soort woonhuis
eengezinswoning
Type woonhuis
vrijstaande woning
Aantal woonlagen
2
Bouwvorm
bestaande bouw
Bouwjaar
1917
Huidige bestemming
woonruimte
Onderhoud binnen
goed_tot_uitstekend
Onderhoud buiten
goed_tot_uitstekend
Voorzieningen
tv kabel
Isolatie
dakisolatie, muurisolatie, vloerisolatie, dubbel glas
Energie
Energielabel
A
Verwarming
cv ketel
Warm water
cv ketel
C.V.-ketel
Intergas (gas gestookt combiketel, uit 2020, eigendom)
Oppervlakten en inhoud
Woonoppervlakte
93 m²
Perceeloppervlakte
144 m²
Inhoud
352 m³
Bergruimte oppervlakte
5 m²
Buitenruimte oppervlakte
23 m²
Indeling
Aantal kamers
3
Aantal slaapkamers
2
Buitenruimte
Ligging
aan rustige weg, in woonwijk
Tuin
achtertuin met een oppervlakte van 36 m² en is gelegen op het noordwesten
Garage / Schuur / Berging
Garage
geen garage
Parkeergelegenheid
openbaar parkeren
Schuur/berging
vrijstaand steen
Lees meer

Locatie

Meer weten?

We helpen je graag verder!

Mitchel Wagner

Mitchel Wagner

Beverwijk

NVM Makelaar

Kan ik dit huis betalen?

Vraag een bezichtiging aan