Plutolaan 28

HEERHUGOWAARD

verkocht

verkocht

woonhuis hoekwoning
Bouwjaar 1971
Woonoppervlakte 121 m²
Aantal slaapkamers 4

Omschrijving

Ruime en lichte eengezinswoning

Aan de Plutolaan 28 in Heerhugowaard staat deze verrassend ruime en lichte eengezinswoning met uitbouw, vier slaapkamers, twee badkamers en een zonnige tuin met berging en achterom. Dankzij de vele ramen en de uitbouw is de woonkamer heerlijk licht en biedt de woning volop leefruimte voor het hele gezin. Een fijne woning op een prettige locatie, dichtbij voorzieningen en uitvalswegen.

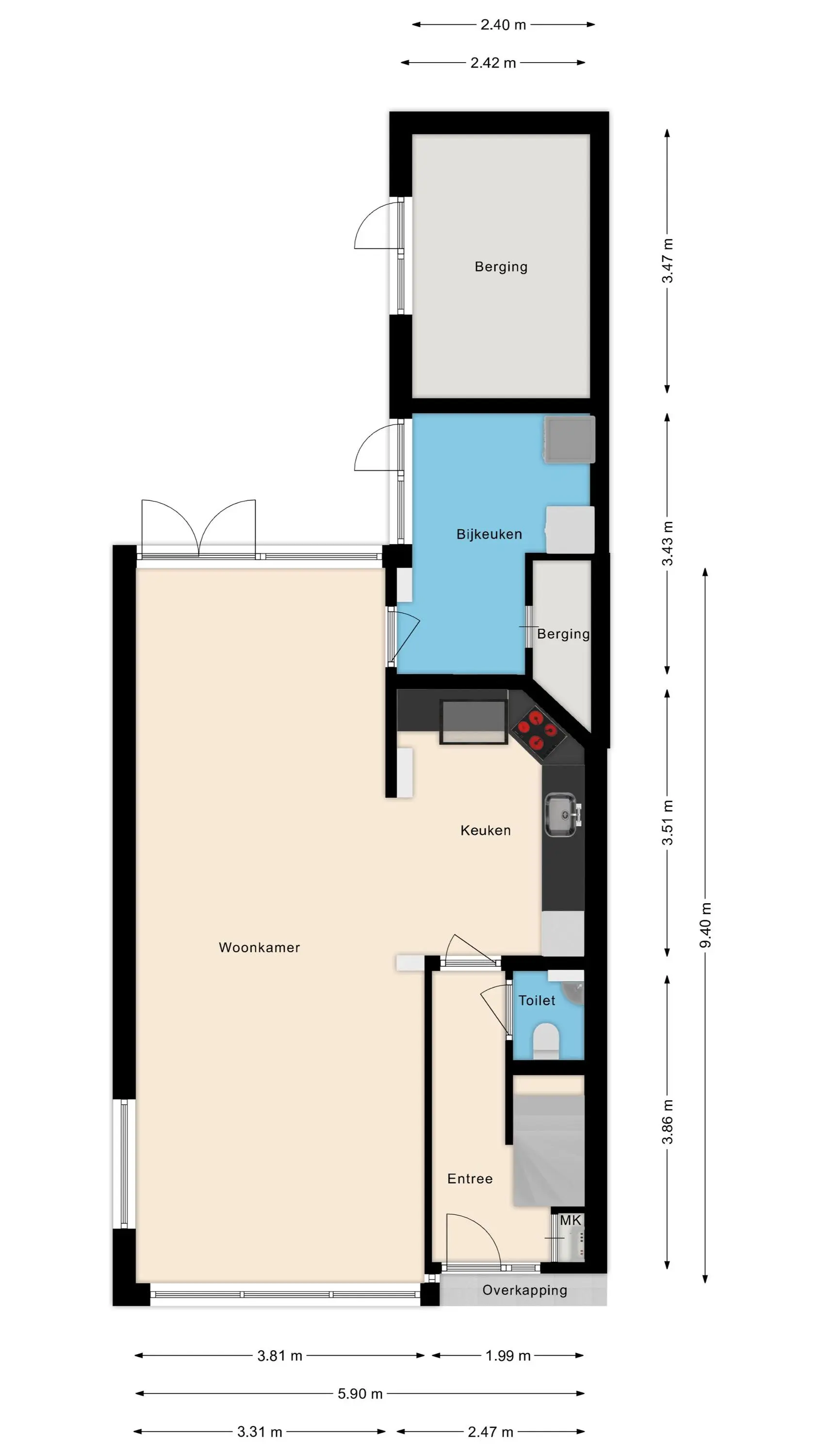
Bij binnenkomst kom je in de ruime woonkamer met open keuken, voorzien van een plavuizenvloer met vloerverwarming. De uitbouw aan de achterzijde zorgt voor extra wooncomfort en maakt de woonkamer aangenaam ruim. Door de grote raampartijen valt er veel natuurlijk licht binnen, wat bijdraagt aan een prettige en open sfeer. Aansluitend bevindt zich de praktische bijkeuken met wasmachineaansluiting, ideaal voor extra bergruimte.

Op de eerste verdieping bevinden zich drie slaapkamers van een goed formaat. Eén van de slaapkamers is voorzien van een handige inbouwkast. Op de overloop is daarnaast een aparte linnenkast aanwezig. De badkamer op deze verdieping beschikt over een douche, wastafel en toilet.

De tweede verdieping biedt een volwaardige vierde slaapkamer met een eigen badkamer, gerealiseerd dankzij de dakkapel uit 2007. Hierdoor is deze verdieping extra ruim en licht. De badkamer is voorzien van een douche, wastafel en toilet. Daarnaast is er nog een kleine vliering aanwezig, ideaal voor extra opslag.

De achtertuin is gelegen op het zuidoosten, waardoor je hier optimaal kunt genieten van de zon. De tuin beschikt over een berging en een praktische achterom, perfect voor fietsen en tuinspullen.

Kortom: een lichte, ruime woning met veel mogelijkheden op een fijne plek in Heerhugowaard. Zie jij jezelf hier al wonen? Neem dan snel contact met ons op voor een bezichtiging!

Bijzonderheden:
- Energielabel B;
- Vloerverwarming begane grond;
- 10 zonnepanelen;
- Vloer- en dakisolatie.

Interesse in deze woning? Schakel direct jouw eigen NVM-aankoopmakelaar in. Jouw NVM-aankoopmakelaar komt op voor jouw belang en bespaart je tijd, geld en zorgen. Adressen van lokale en regionale NVM-aankoopmakelaars vind je ook op Funda. NVM Zeker weten.

Lees meer

Kenmerken

Overdracht
Status
verkocht
Aanvaarding
in overleg
Bouw
Soort woning
woonhuis
Soort woonhuis
eengezinswoning
Type woonhuis
hoekwoning
Aantal woonlagen
4
Bouwvorm
bestaande bouw
Bouwjaar
1971
Huidige bestemming
woonruimte
Onderhoud binnen
goed
Onderhoud buiten
goed
Voorzieningen
mechanische ventilatie, glasvezel kabel, zonnepanelen
Isolatie
vloerisolatie, dubbel glas
Energie
Energielabel
B
Verwarming
cv ketel, vloerverwarming gedeeltelijk
Warm water
cv ketel
C.V.-ketel
Intergas (gas gestookt combiketel, uit 2021, eigendom)
Oppervlakten en inhoud
Woonoppervlakte
121 m²
Perceeloppervlakte
161 m²
Inhoud
431 m³
Inpandige ruimte oppervlakte
11 m²
Buitenruimte oppervlakte
1 m²
Indeling
Aantal kamers
5
Aantal slaapkamers
4
Buitenruimte
Ligging
aan rustige weg, in woonwijk
Tuin
achtertuin met een oppervlakte van 28 m² en is gelegen op het zuiden
Garage / Schuur / Berging
Garage
geen garage
Parkeergelegenheid
openbaar parkeren
Schuur/berging
aangebouwd steen
Lees meer

Locatie

Meer weten?

We helpen je graag verder!

Kan ik dit huis betalen?

Vraag een bezichtiging aan