Soutmanstraat 37

HAARLEM

verkocht

verkocht

woonhuis tussenwoning
Bouwjaar 1900
Woonoppervlakte 81 m²
Aantal slaapkamers 3

Omschrijving

Woning met veel potentie in het hart van Haarlem!

Altijd al gedroomd van het creëren van jouw ideale thuis? Heb jij twee rechterhanden en zie je kansen waar anderen obstakels zien? Dan is deze karakteristieke eengezinswoning echt iets voor jou! De woning biedt volop mogelijkheden om volledig naar eigen wens te moderniseren en ligt bovendien op een toplocatie, op steenworp afstand van het bruisende centrum van Haarlem, maar toch kindvriendelijk dankzij de rustige straat.

De woning bevindt zich op slechts 850 meter van station Haarlem. Met de trein sta je binnen 15 minuten in Amsterdam, binnen 10 minuten in Leiden en in slechts 20 minuten op het zomerse strand van Zandvoort. Diverse busverbindingen naar omliggende dorpen zijn eveneens op loopafstand bereikbaar. Een ideale uitvalsbasis voor werk én vrije tijd!

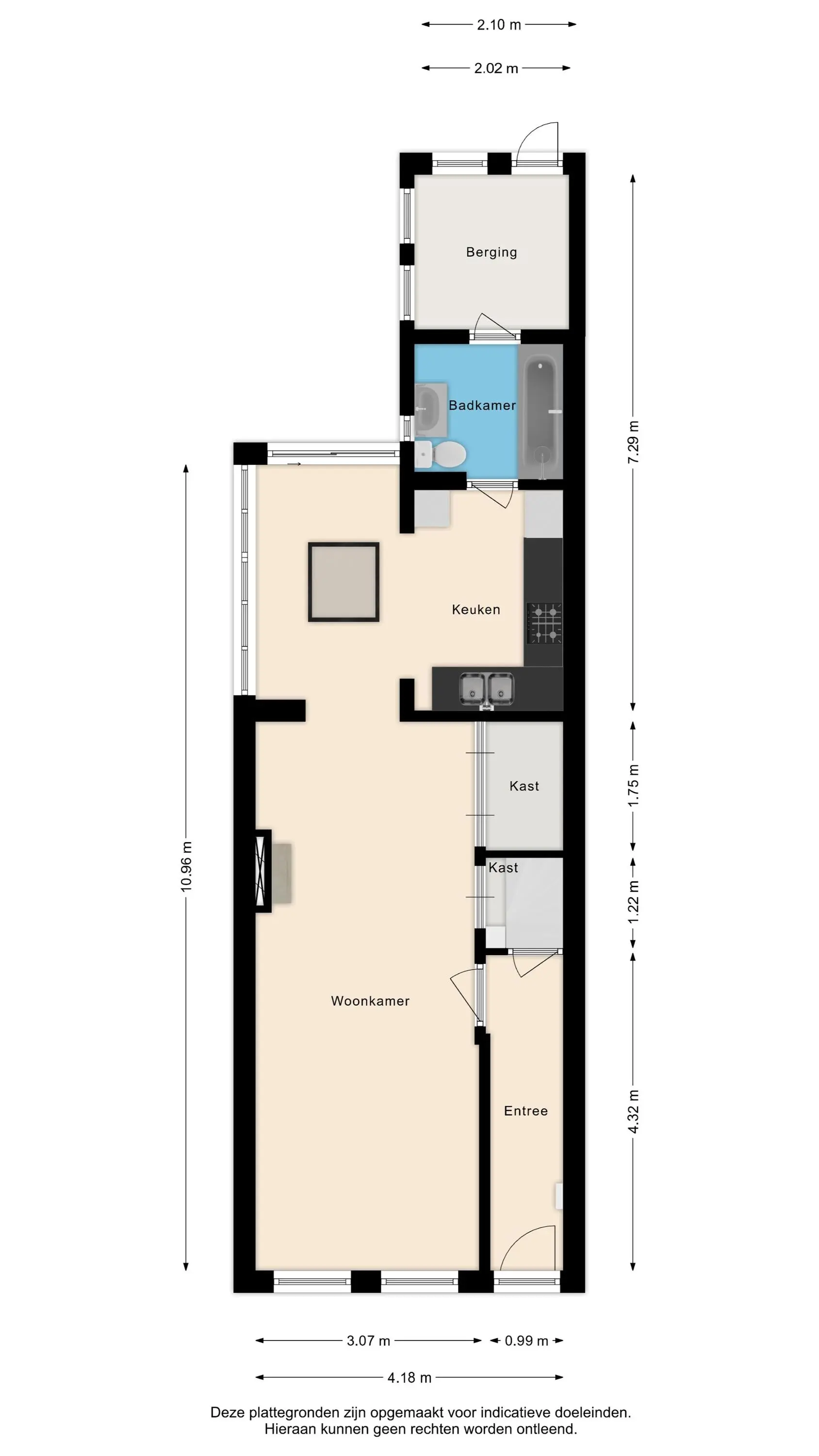
Op de begane grond vind je een ruime woonkamer met een plafondhoogte van circa 2,72 meter, wat een heerlijk ruimtelijk gevoel geeft. Bovendien zijn de karakteristieke glas-in-loodraampjes in de woonkamer behouden gebleven, wat extra sfeer en charme toevoegt. Aan de achterzijde bevindt zich de eenvoudige keuken, die dankzij het daklicht prettig en licht aanvoelt. Hier kun je volledig je eigen stijl doorvoeren. Vanuit de keuken loop je via de schuifpui zo de fijne achtertuin in. Aansluitend aan de keuken vind je de royale badkamer, uitgerust met een wastafelmeubel, toilet en bad/douchecombinatie. Ook is er een aansluiting aanwezig voor een wasmachine en droger.

Op de eerste verdieping bevinden zich drie goed bemeten slaapkamers. De grote slaapkamer ligt aan de voorzijde van de woning. Aan de achterzijde vind je nog twee slaapkamers van iets kleiner formaat, die ideaal te gebruiken zijn als kinderkamer of thuiswerkplek. Alle drie de slaapkamers krijgen veel daglicht, waardoor ze ruim en sfeervol aanvoelen. Verder is er nog een handige vliering aanwezig, waar je extra spullen kunt opbergen.

Aangebouwd aan de woning bevindt zich de berging, met voldoende ruimte voor het stallen van diverse benodigdheden. Vanuit de berging heb je ook toegang tot de achtertuin, die is gelegen op het noordoosten. Hier kun je van ’s ochtends vroeg tot in de middag heerlijk van de zon genieten.

Bijzonderheden:
- Karakteristieke eengezinswoning met veel potentie;
- Drie slaapkamers op de eerste verdieping;
- Praktische berging met toegang tot de tuin;
- Vliering met extra bergruimte;
- Centrum en station van Haarlem op loopafstand;
- Op fietsafstand van het heerlijke strand van Zandvoort;
- Asbest- en ouderdomsclausule van toepassing;
- Oplevering in overleg, kan spoedig;
- Notariskeuze aan koper, mits in omgeving Haarlem.

Interesse in deze woning met potentie? Schakel direct jouw eigen NVM-aankoopmakelaar in. Jouw NVM-aankoopmakelaar komt op voor jouw belang en bespaart je tijd, geld en zorgen. Adressen van lokale en regionale NVM-aankoopmakelaars vind je ook op Funda. NVM? Zeker weten!

Lees meer

Kenmerken

Overdracht
Status
verkocht
Aanvaarding
in overleg
Bouw
Soort woning
woonhuis
Soort woonhuis
eengezinswoning
Type woonhuis
tussenwoning
Aantal woonlagen
2
Bouwvorm
bestaande bouw
Bouwjaar
1900
Huidige bestemming
woonruimte
Onderhoud binnen
slecht_tot_matig
Onderhoud buiten
slecht_tot_matig
Voorzieningen
tv kabel, natuurlijke ventilatie
Isolatie
gedeeltelijk dubbel glas
Energie
Energielabel
G
Verwarming
gaskachels
Warm water
cv ketel, geiser eigendom
Oppervlakten en inhoud
Woonoppervlakte
81 m²
Perceeloppervlakte
88 m²
Inhoud
285 m³
Inpandige ruimte oppervlakte
4 m²
Indeling
Aantal kamers
4
Aantal slaapkamers
3
Buitenruimte
Ligging
in woonwijk
Tuin
achtertuin met een oppervlakte van 46 m² en is gelegen op het noordoosten
Garage / Schuur / Berging
Garage
geen garage
Parkeergelegenheid
betaald parkeren
Schuur/berging
aangebouwd steen
Lees meer

Locatie

Meer weten?

We helpen je graag verder!

Joris Filarski

Joris Filarski

Beverwijk

NVM Makelaar

Kan ik dit huis betalen?

Vraag een bezichtiging aan