Termijen 95

HEILOO

verkocht

verkocht

woonhuis eindwoning
Bouwjaar 1971
Woonoppervlakte 125 m²
Aantal slaapkamers 4

Omschrijving

Ruime eindwoning met vier slaapkamers én zonnige tuin op het zuiden

In een rustige straat in een groene en kindvriendelijke woonwijk van Heiloo staat deze uitstekend onderhouden eindwoning. Het betreft een echte gezinswoning met vier ruime slaapkamers, een zonnige tuin op het zuiden en volop leefruimte. De woning is instapklaar en energiezuinig, met energielabel A, een warmtepomp, vloerverwarming, HR++ glas en 17 zonnepanelen. Dankzij de ligging nabij dagelijkse voorzieningen, een basisschool en veel openbaar groen is dit een comfortabele en complete woning op een ideale locatie voor gezinnen.

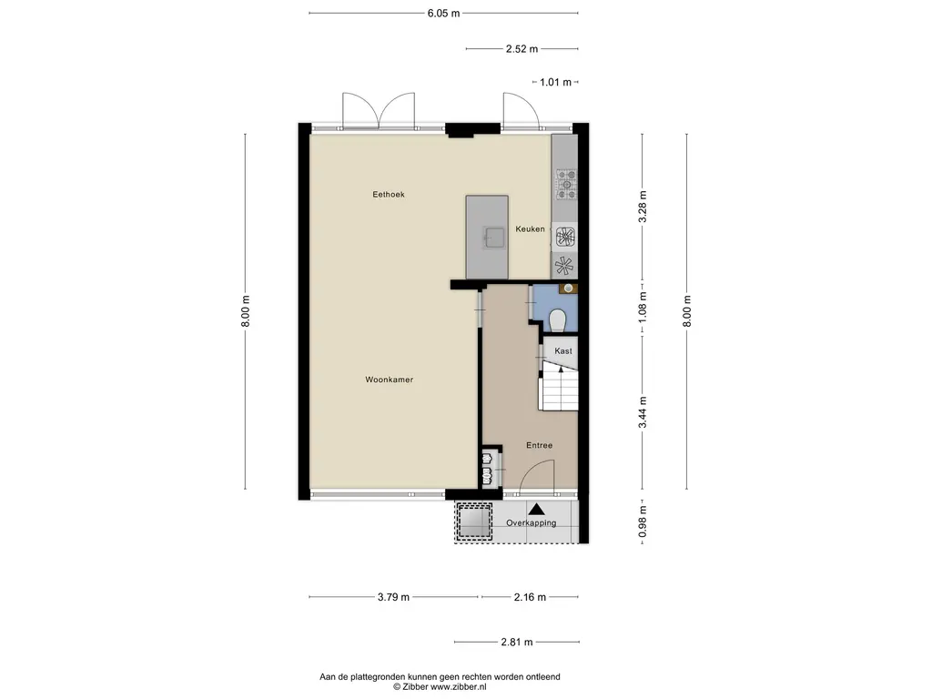
Je komt binnen in een lichte hal met een stijlvolle visgraat PVC-vloer die doorloopt over de gehele begane grond. Bij binnenkomst in de woonkamer valt direct de fijne indeling op. Aan de voorzijde bevindt zich het zitgedeelte met een groot raam en voldoende ruimte voor een royale zithoek. De gehele benedenverdieping is voorzien van vloerverwarming, wat zorgt voor een aangenaam en gelijkmatig binnenklimaat. Aan de achterzijde liggen de eethoek en de moderne keuken, die beschikt over voldoende kastruimte en een praktische opstelling.

De achtertuin is gunstig gelegen op het zuiden en biedt veel privacy doordat er geen directe achterburen zijn. Daarnaast is er over de gehele breedte van de woning een elektrisch zonnescherm geplaatst. Via de achtertuin bereik je de garage en praktische berging, voor fietsen en opslag. De berging is verkort, waardoor een extra zitplek is ontstaan.

Op de eerste verdieping bevinden zich drie comfortabele slaapkamers met een smaakvolle houten parketvloer. De badkamer is netjes afgewerkt en voorzien van een inloopdouche, toilet, dubbele wastafel en vloerverwarming. De tweede verdieping is bereikbaar via een vaste trap. Op deze etage bevindt zich een royale wasruimte, volwaardige vierde slaapkamer en extra bergruimte achter de knieschotten. Over de gehele breedte is een verzwaarde kunststof dakkapel geplaatst en in de slaapkamer is extra lichtinval gecreëerd dankzij meerdere Velux-dakramen.

Verkoper vertelt: "We hebben de afgelopen 13 jaar met heel veel plezier in dit energiezuinige huis gewoond. De ligging in het groen, de tuin op het zuiden, twee garages en hele ruime slaapkamers maakt dit een heel fijn huis."

Ben je op zoek naar een verzorgde, energiezuinige woning op een fijne locatie in Heiloo? Neem dan contact met ons op voor een bezichtiging.

Bijzonderheden:
- Energiezuinige woning met warmtepomp;
- Fijne gezinswoning met vier slaapkamers;
- Instapklare woning met vloerverwarming;
- Zonnige tuin op het zuiden met garage én berging;
- In groene en kindvriendelijke omgeving.

Interesse in deze woning? Schakel direct jouw eigen NVM-aankoopmakelaar in. Jouw NVM-aankoopmakelaar komt op voor jouw belang en bespaart je tijd, geld en zorgen. Adressen van lokale en regionale NVM-aankoopmakelaars vind je ook op Funda. NVM Zeker weten.

Lees meer

Kenmerken

Overdracht
Status
verkocht
Aanvaarding
in overleg
Bouw
Soort woning
woonhuis
Soort woonhuis
eengezinswoning
Type woonhuis
eindwoning
Aantal woonlagen
3
Bouwvorm
bestaande bouw
Bouwjaar
1971
Huidige bestemming
woonruimte
Onderhoud binnen
goed_tot_uitstekend
Onderhoud buiten
goed_tot_uitstekend
Voorzieningen
tv kabel, buitenzonwering, dakraam, glasvezel kabel, zonnepanelen, natuurlijke ventilatie
Isolatie
dakisolatie, muurisolatie, vloerisolatie
Energie
Energielabel
A
Verwarming
cv ketel, vloerverwarming gedeeltelijk, warmtepomp
Warm water
cv ketel
C.V.-ketel
Intergas (gas gestookt combiketel, uit 2021, eigendom)
Oppervlakten en inhoud
Woonoppervlakte
125 m²
Perceeloppervlakte
167 m²
Inhoud
442 m³
Bergruimte oppervlakte
29 m²
Buitenruimte oppervlakte
3 m²
Indeling
Aantal kamers
5
Aantal slaapkamers
4
Buitenruimte
Ligging
aan rustige weg, in woonwijk, in bosrijke omgeving
Tuin
achtertuin met een oppervlakte van 47 m² en is gelegen op het zuiden
Garage / Schuur / Berging
Garage
vrijstaande stenen garage
Parkeergelegenheid
openbaar parkeren, op eigen terrein
Schuur/berging
vrijstaand steen
Lees meer

Locatie

Kan ik dit huis betalen?

Vraag een bezichtiging aan