Voormalige opzichterswoning uit 1904 in het centrum van Bakkum, een unieke kans!
Gelegen op één van de meest geliefde plekjes van de omgeving, aan de rand van bos en zee staat dit prachtige rijksmonument met energielabel A en heeft maar liefs 198m2 woonoppervlakte. De woning is volledig gerenoveerd en alle karakteristieke detail zijn behouden of in ere herstelt. De woning beschikt onder andere over vier ruime slaapkamers, twee stijlvolle badkamers, een schitterend aangelegde tuin en een royale gastenverblijf (met eigen voorzieningen). Alles is gelegen op een perceel van maar liefst 891 m2 en in combinatie met de locatie in het centrum van het geliefde Bakkum, maakt dit huis de perfecte plek voor nieuwe eigenaren die op zoek zijn naar een bijzonder thuis!
Dat het een unieke woning is valt al gelijk op aan de buitenzijde door o.a. het gepleisterde bovenwerk en de prachtige bogen. De karakteristieke details zoals een originele tegelvloer in de hal, een klassieke voordeur, hoge plafonds met ornamenten en paneeldeuren geven het huis een unieke sfeer. Vanuit de hal heb je toegang tot het toilet, de ruime kelder en toegangsdeuren tot beide woondelen. In de kelder is o.a. de grond warmtepomp en meterkast gesitueerd. Aan de linkerzijde betreed je de lichte eetkamer, waar de open haard voor extra sfeer zorgt. Via de dubbele en-suite deuren loop je richting de zitkamer, waar zich tevens een houtkachel bevindt die als doorkijk en scheiding met de keuken fungeert. De keuken is aan de achterzijde van de woning gesitueerd en geeft toegang tot de tuin die rondom de woning is gelegen. De keuken is voorzien van een stijlvol SMEG-fornuis met inductiekookplaat, een Quooker, inbouw koelkast en een koffiecorner. Tevens is de gehele begane grond voorzien van vloerverwarming, een houten vloer en prachtige ornamenten en omlijsting op het plafond.
Vanuit elke ruimte op de begane grond heb je zicht op de fraai aangelegde tuin, die voorzien is meerdere zithoekjes en terrassen. Bij thuiskomst heb je ook altijd plek voor het parkeren van je auto omdat hier genoeg ruimte voor is gecreëerd op je eigen perceel en inclusief een laadpaal (ter overname).
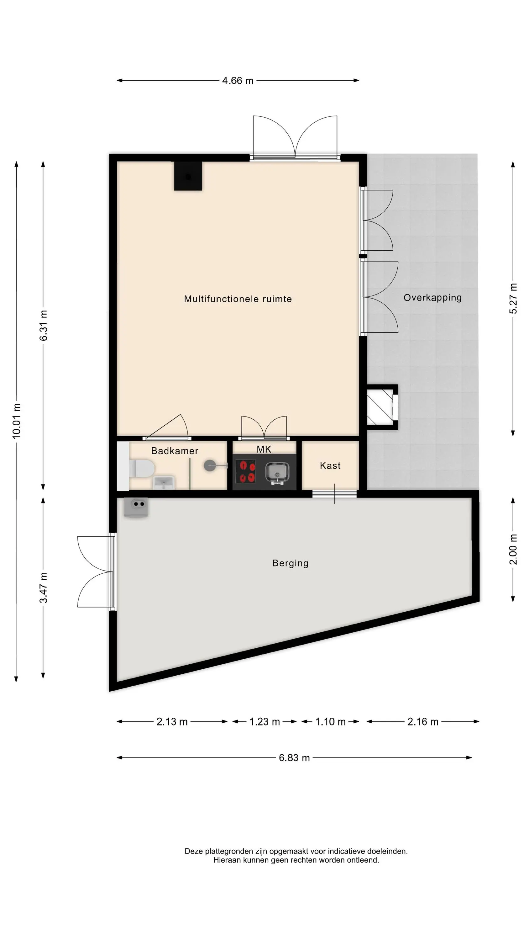
Voor de kinderen is er een recent aangelegde schommel in de tuin aanwezig. Verder naar een ander héél groot pluspunt aan deze woning, namelijk een royaal en stijlvol tuinhuis dat zich uitstekend leent als luxe gastenverblijf of vijfde slaapkamer. Ben jij dus op zoek naar een gastenverblijf, kangoeroe woning of praktijk aan huis, dan is dit de ideale match! Het gastenverblijf is voorzien van alle comfort, waaronder vloerverwarming, een eigen cv-installatie, een moderne badkamer met douche en toilet, en een elegant keukenblok. Aan de buitenzijde nodigt een riante overkapping met open haard uit om lange, sfeervolle avonden door te brengen en het rustgevende uitzicht op de tuin. Aansluitend bevindt zich een ruime berging/garage met volop mogelijkheden voor opslag of hobbyruimte. Tevens behoort het achterliggende 'Spuithuis' ook tot het perceel en bezit van de huidige bewoners.
Terug naar het woonhuis, waar we doorlopen naar de eerste verdieping die tevens geheel voorzien is van vloerverwarming en grotendeels vacuümglas. Ook hier vallen direct weer de details op die de woning typeren zoals een klassieke traploper, rond afgewerkte muren die omgebouwd zijn tot kasten en openhaard sierlijsten die puur ter decoratie zijn behouden. De overloop geeft toegang tot 3 royale slaapkamer met inbouwkasten, de badkamer en een separaat toilet. De zeer ruime en luxe badkamer is voorzien van inloopdouche, ligbad, dubbele wastafel en vloerverwarming. Hier kun je na een lange (werk)dag echt tot rust komen!
Middels een vaste trap is de tweede verdieping te bereiken die recent geheel is gerenoveerd. De vierde slaapkamer die hier is gesitueerd voelt echt als een ware hotel-suite aan. De tweede badkamer die hier is gecreëerd is tevens luxe uitgevoerd en voorzien van een douche, wastafel en toilet. Het slaapvertrek op deze woning is gelegen in de punt van het dak, wat voor een gezellige sfeer zorgt. Tevens beschikt de woning op deze verdieping nog over extra bergruimte.
Een stukje geschiedenis:
De voormalige opzichterswoning van Duin en Bosch werd in 1904 gerealiseerd naar een ontwerp van architect Poggenbeek. De woning is vormgegeven in de voor het terrein typerende bouwstijl, die onder meer wordt gekenmerkt door de gepleisterde bovenverdieping. Belangrijk is dat bij de instandhouding van het pand de ruimtelijke beleving, de open structuur en het groene karakter van de omliggende tuinen behouden blijven. Deze elementen vormen samen met de nabijgelegen monumenten een waardevol geheel dat in de gemeente uniek is en ook daarbuiten zelden wordt aangetroffen.
Bijzonderheden:
- Rijksmonument
- Perceeloppervlakte 891 m2
- Parkeren op eigen terrein, met aanwezigheid laadpaal
- Volledig gasloos en duurzaam
- Luxe gastenverblijf
- Gelegen in het centrum van geliefde Bakkum
- Op loop of fietsafstand van bos, strand, duinen en NS station.
Interesse in deze woning? Schakel direct jouw eigen NVM-aankoopmakelaar in. Jouw NVM-aankoopmakelaar komt op voor jouw belang en bespaart je tijd, geld en zorgen. Adressen van lokale en regionale NVM-aankoopmakelaars vind je ook op Funda. NVM Zeker weten.