Wilgenhoflaan 113

BEVERWIJK

nieuw

€ 475.000,- k.k.

woonhuis tussenwoning
Bouwjaar 1955
Woonoppervlakte 116 m²
Aantal slaapkamers 3

Omschrijving

Instapklare tussenwoning op een toplocatie!

Sfeervol, instapklaar en helemaal van nu. Deze volledig gemoderniseerde en uitstekend onderhouden woning aan de Wilgenhoflaan 113 in Beverwijk is tot in detail vernieuwd en voorzien van alle comfort van deze tijd. Vanaf 2011 is de woning stapsgewijs gemoderniseerd. In 2012 is een aanbouw gerealiseerd en in 2023 is een fraaie dakopbouw geplaatst. Verder is de woning uitgerust met kunststof kozijnen, twaalf zonnepanelen en twee airco’s. Hierdoor woon je hier energiezuinig en comfortabel op een kindvriendelijke en centrale locatie.

De woning ligt in een rustige woonwijk op korte fietsafstand van het gezellige centrum van Beverwijk en het NS-station. Via de nabijgelegen uitvalswegen zijn Amsterdam, Haarlem en Alkmaar snel bereikbaar. Ook scholen, supermarkten, horeca, de duinen en het strand bevinden zich in de directe omgeving. Dit is een ideale woonplek met alle voorzieningen binnen handbereik.

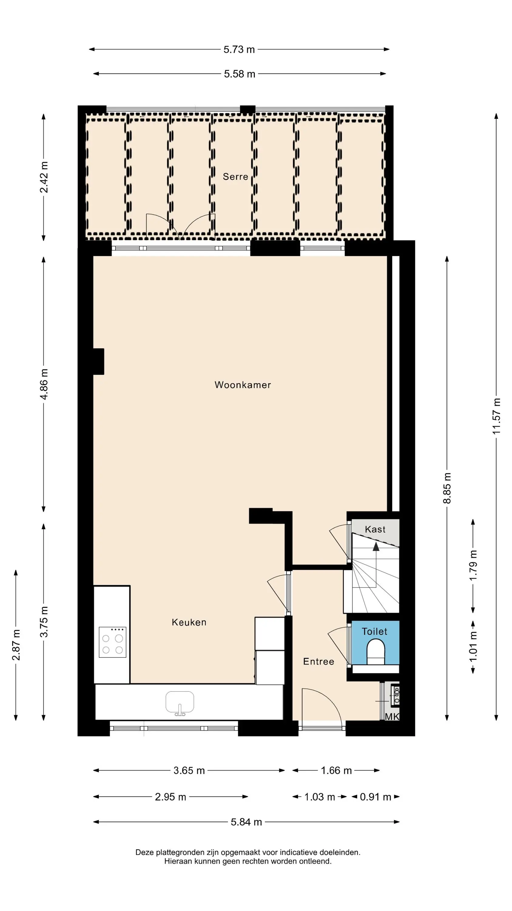
Bij binnenkomst valt direct de warme en uitnodigende sfeer op. De woonkamer is licht en ruim en biedt aan de achterzijde een knusse zithoek. De gehele begane grond is voorzien van inbouwspots, wat zorgt voor een moderne en sfeervolle uitstraling. Tussen de gezellige zithoek en moderne keuken bevindt zich de eethoek, waar je heerlijk lang kunt tafelen met vrienden en familie. De moderne open keuken is in 2023 volledig vernieuwd en vormt dankzij de ruime opzet en strakke afwerking een heerlijke plek om te koken. In de entree is tevens nog een separaat toilet aanwezig.

Op de eerste verdieping bevinden zich twee goed bemeten slaapkamers met veel lichtinval. De badkamer is in 2023 volledig gemoderniseerd en uitgevoerd met tijdloze zwarte details, een dubbel wastafelmeubel, het tweede toilet en een luxe inloopregendouche. Verder is er een aparte ruimte voor de wasmachine en droger aanwezig. De tweede verdieping biedt dankzij de dakopbouw uit 2023 een verrassend ruime derde slaapkamer met veel lichtinval.

De tuin ligt op het noordoosten en is een fijne plek waar je in de ochtend van de zon kunt genieten en tijdens warme dagen de verkoelende schaduw opzoekt. Aan de achterzijde is een prachtige veranda met glazen dak geplaatst, waardoor je hier het hele jaar door beschut kunt zitten. Daarnaast is er een ruime schuur aanwezig voor extra opslag en het stallen van fietsen. Daarnaast is er ook nog een praktische achterom aanwezig.

Deze volledig gemoderniseerde en instapklare woning combineert sfeer, comfort en functionaliteit en biedt alles voor zorgeloos wonen in een complete en aantrekkelijke woonomgeving.

Bijzonderheden:
- Drie slaapkamers;
- Energielabel A;
- Voorzien van 12 zonnepanelen, welke zijn geplaatst in 2023;
- Voorzien van 2 airco's, welke zijn geplaatst in 2023;
- Keuken en badkamer in 2023 volledig gemoderniseerd;
- Asbest- en ouderdomsclausule van toepassing;
- Oplevering in overleg;
- Notariskeuze aan koper, mits in omgeving Beverwijk.

Interesse in deze fijne tussenwoning? Schakel direct jouw eigen NVM-aankoopmakelaar in. Jouw NVM-aankoopmakelaar komt op voor jouw belang en bespaart je tijd, geld en zorgen. Adressen van lokale en regionale NVM-aankoopmakelaars vind je ook op Funda. NVM? Zeker weten.

Lees meer

Kenmerken

Overdracht
Vraagprijs
€ 475.000,- k.k.
Status
beschikbaar
Aanvaarding
in overleg
Bouw
Soort woning
woonhuis
Soort woonhuis
eengezinswoning
Type woonhuis
tussenwoning
Aantal woonlagen
3
Bouwvorm
bestaande bouw
Bouwjaar
1955
Huidige bestemming
woonruimte
Onderhoud binnen
uitstekend
Onderhoud buiten
uitstekend
Voorzieningen
mechanische ventilatie, tv kabel, buitenzonwering, airconditioning, zonnepanelen, natuurlijke ventilatie
Isolatie
volledig geisoleerd
Energie
Energielabel
A
Verwarming
cv ketel
Warm water
cv ketel
C.V.-ketel
Remeha (uit 2018, eigendom)
Oppervlakten en inhoud
Woonoppervlakte
116 m²
Perceeloppervlakte
138 m²
Inhoud
439 m³
Bergruimte oppervlakte
5 m²
Buitenruimte oppervlakte
14 m²
Indeling
Aantal kamers
4
Aantal slaapkamers
3
Buitenruimte
Ligging
aan rustige weg, in woonwijk
Tuin
achtertuin met een oppervlakte van 50 m²
Garage / Schuur / Berging
Garage
geen garage
Parkeergelegenheid
openbaar parkeren
Schuur/berging
vrijstaand steen
Lees meer

Locatie

Kan ik dit huis betalen?

Vraag een bezichtiging aan