Gasthuisstraat 3

HAARLEM

nieuw

€ 2.300,- p/m

woonhuis tussenwoning
Bouwjaar 1986
Woonoppervlakte 102 m²
Aantal slaapkamers 2

Omschrijving

ENGLISH TRANSLATION BELOW
Luxe wonen in de Vijfhoek - ruim en licht appartement in hartje Haarlem

Op zoek naar een stijlvolle woning in een van de meest geliefde buurten van Haarlem? Dit ruime 4-kamer appartement met eigen entree en moderne afwerking biedt de perfecte combinatie van stadse gezelligheid en comfort.

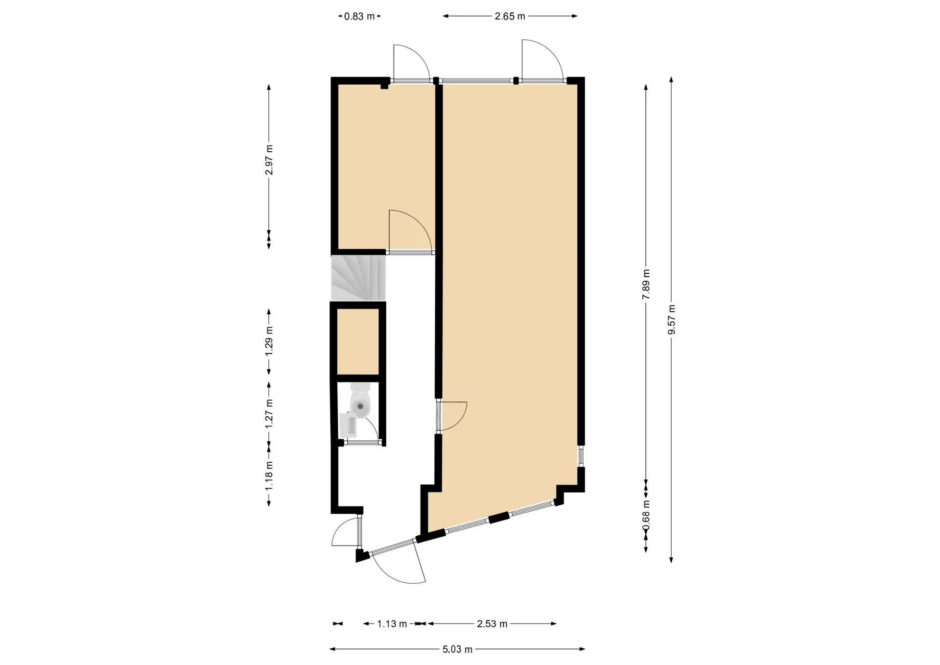
Indeling
Via de privé-entree op de begane grond kom je binnen in een hal met aangrenzende leefruimte. Deze ruimte is ideaal in te richten met een bank en televisie – een fijne plek om te ontspannen.

Op de eerste verdieping bevindt zich de lichte woonkamer met eetgedeelte en de moderne open keuken, uitgerust met Siemens inbouwapparatuur. Hier is volop ruimte om te koken en gezellig te tafelen.

De badkamer, bereikbaar vanaf de overloop, is voorzien van een inloopdouche, toilet, wastafel en handdoekenradiator. Op de tweede verdieping bevinden zich twee ruime en lichte slaapkamers, plus een extra kamer die ideaal kan worden ingericht als studeerkamer.

Belangrijk!
Let op: de achtertuin hoort niet bij de woning en mag niet in gebruik worden genomen. Deze ruimte is namelijk de officiële vluchtroute van de DekaMarkt en moet te allen tijde vrij blijven.

Locatie
De woning ligt in de bruisende wijk de Vijfhoek, op loopafstand van de Grote Markt en de vele restaurants, cafés en terrassen die Haarlem rijk is. Voor ontspanning in de natuur zijn de Kennemerduinen binnen 10 minuten te bereiken met de fiets en het strand in slechts 25 minuten. Amsterdam en Schiphol liggen op ongeveer 30 minuten met de auto.

Belangrijke informatie
- Beschikbaar: per direct;
- Huurprijs: € 2.300,- per maand;
- Waarborgsom: 2 maanden kale huur;
- Inkomenseis: minimaal 4 x de kale maandhuur als bruto maandinkomen;
- Huisdieren en roken: niet toegestaan;
- Woningdelers niet toegestaan;
- Toetsing: financiële screening maakt deel uit van het verhuurproces.

Interesse?
Vraag een bezichtiging aan door het inschrijfformulier in te vullen op de website van Teer. Alleen aanvragen die via dit formulier zijn ingediend, worden in behandeling genomen. Na een voorselectie worden geselecteerde kandidaten uitgenodigd voor een bezichtiging.

=========================================================================

ENGLISH TRANSLATION

Luxury living in the Vijfhoek – spacious and bright apartment in the heart of Haarlem

Looking for a stylish home in one of Haarlem’s most popular neighborhoods? This spacious 4-room apartment with private entrance and modern finish offers the perfect combination of urban charm and comfort.

Layout
Through the private entrance on the ground floor, you step into a hallway with an adjacent living area. This space is ideal to set up with a sofa and television – a cozy place to relax.

On the first floor, you’ll find the bright living and dining room with a modern open kitchen, fully equipped with Siemens built-in appliances. Here you’ll have plenty of space for cooking and entertaining.

The bathroom, accessible from the landing, is fitted with a walk-in shower, toilet, washbasin, and towel radiator. On the second floor, there are two spacious and light bedrooms, plus an additional room that can ideally serve as a study.

Important
Please note: the backyard is not part of the property and may not be used. This area serves as the official emergency exit route for the DekaMarkt and must be kept clear at all times.

Location
The apartment is located in the lively Vijfhoek district, within walking distance of the Grote Markt and Haarlem’s many restaurants, cafés, and terraces. For nature and leisure, the Kennemer dunes are only 10 minutes away by bike, and the beach just 25 minutes. Amsterdam and Schiphol Airport can be reached in approximately 30 minutes by car.

Key information
- Available: immediately;
- Rent: € 2.300 per month;
- Deposit: 2 months’ rent;
- Income requirement: at least 4 times the monthly rent as gross monthly income;
- Pets and smoking: not allowed;
- House sharing: not permitted;
- Screening: financial background check is part of the rental process.

Interested?
Request a viewing by completing the registration form on the Teer website. Only applications submitted through this form will be considered. After a preselection process, selected candidates will be invited for a viewing.

Lees meer

Kenmerken

Overdracht
Huurprijs
€ 2.300,- p/m
Status
beschikbaar
Aanvaarding
in overleg
Bouw
Soort woning
woonhuis
Soort woonhuis
eengezinswoning
Type woonhuis
tussenwoning
Aantal woonlagen
3
Bouwvorm
bestaande bouw
Bouwjaar
1986
Huidige bestemming
woonruimte
Onderhoud binnen
redelijk_tot_goed
Onderhoud buiten
redelijk_tot_goed
Energie
Energielabel
B
Verwarming
cv ketel
Oppervlakten en inhoud
Woonoppervlakte
102 m²
Indeling
Aantal kamers
5
Aantal slaapkamers
2
Buitenruimte
Ligging
in centrum
Garage / Schuur / Berging
Garage
geen garage
Lees meer

Locatie

Meer weten?

We helpen je graag verder!

Sophie Koole

Sophie Koole

Verhuur

Verhuurmakelaar

Wil je deze woning bezichtigen?

Vul dan het complete inschrijfformulier in.
Wij nemen zo snel mogelijk contact met je op!

Inschrijfformulier invullen

Aanvraagformulier Application form

English?Nederlands?
Gegevens kandidaat huurder Details candidate tenant
Achternaam * Surname *
Voornamen * First name(s) *
Adres * Address *
Postcode * Zipcode *
Woonplaats * City / town *
Geboortedatum * Date of birth *
Geboorteplaats * Place of birth *
Burgelijke staat * Marital status *
Beroep * Profession *
Telefoon * Telephone number *
E-mail *
Gegevens tweede kandidaat huurder Details second candidate tenant
Achternaam Surname
Voornamen First name(s)
Adres Address
Postcode Zipcode
Woonplaats City / town
Geboortedatum Date of birth
Geboorteplaats Place of birth
Burgelijke staat Marital status
Beroep Profession
Telefoon Telephone number
E-mail
Relatie huurder 1 en huurder 2 Relationship between tenant 1 and tenant 2
Met hoeveel kinderen & huisdieren wilt u de woning bewonen? How many children and pets would you like to live in this house with?
Kinderen * Children *
Huisdieren (specificeer) * Pets (please specify) *
Reden van uw verhuizing? Reason for moving?
Jouw antwoord hier * Your answer here *
Bijzonderheden Particularities
Jouw antwoord hier Your answer here
Huidige woonsituatie Current living situation
Koopwoning, huurwoning, inwonend bij ouders, anders? * Homeowner, renter, living with parents, other? *
Wat is je huidige werkstatus? What is your current work status?
Namelijk * Namely *
Looptijd contract (indien van toepassing) Contract length (if applicable)
Van From
Tot To
Is er intentie tot verlening? Is there intent to renew?
Financiële verplichtingen Financial obligations
Bruto jaarinkomen aanvrager 1 * Gross annual income applicant 1 *
Bruto jaarinkomen aanvrager 2 Gross annual income applicant 2
Persoonlijke verplichtingen aanvrager 1+2 * Personal obligations applicants 1+2 *
Spaartegoed totaal * Total savings *