Gerrit van Assendelftstraat 36

HEEMSKERK

nieuw

€ 3.000,- p/m

Type kantoorruimte
Bouwjaar 2012
Oppervlakte 200 m²

Omschrijving

TE HUUR – Gerrit van Assendelftstraat 36, Heemskerk

Op zoek naar een representatieve kantoorruimte op een centrale locatie waar je bedrijf direct professioneel voor de dag komt? Deze goed onderhouden kantoorruimte biedt alles wat ondernemingen in de zakelijke dienstverlening nodig hebben: een efficiënte indeling, optimale werkplekken, een ruime vergaderruimte, een afsluitbaar kantoor en een royale archief- en opslagkelder. Een compleet pakket op een plek waar bereikbaarheid en uitstraling hand in hand gaan. Plan gerust een bezichtiging en ontdek hoe dit kantoor jouw organisatie kan versterken.

Hoofdkenmerken
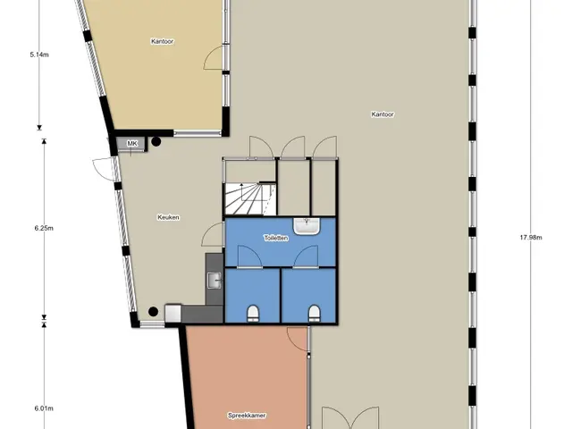
• Kantoorruimte ca. 200 m² en archief ca. 46 m²
• Negen werkplekken en een vergaderruimte voor circa acht personen
• Afgesloten kantoorruimte aan de achterzijde, keuken met inbouwapparatuur en twee toiletten
• Vier parkeerplaatsen op eigen terrein
• Uitstekende bereikbaarheid nabij A9, OV en centrum
• Huurprijs € 3.000,- per maand exclusief btw en servicekosten
• Servicekosten €145,- per maand exclusief btw; omvatten o.a. de bijdrage voor de 40 zonnepanelen (opbrengst t.b.v. het kantoor), de periodieke glazenwasbeurten en de kosten die horen bij het gebruik van de vier parkeerplaatsen.

Volledige omschrijving
Bij binnenkomst wordt je meteen ontvangen door de lichte vergaderruimte aan de voorzijde, een ideale plek om relaties professioneel te ontvangen. Daarachter bevindt zich de open kantoorruimte met negen werkplekken, veel kastruimte en een rustige, verzorgde uitstraling dankzij het systeemplafond met verlichting en de nette wandafwerking. Het pand ademt een fijne werksfeer waarin productiviteit vanzelf ontstaat.

Aan de achterzijde ligt een afsluitbare kantoorruimte, geschikt voor directie, vertrouwelijk overleg of geconcentreerd werken. Hier bevinden zich ook de keuken met inbouwapparatuur en de twee toiletten. In de kelder vind je een royale archiefruimte van circa 46 m², perfect voor dossieropslag, voorraad of materiaal dat buiten het zicht maar binnen handbereik moet blijven.

De ligging is een sterk punt van dit pand. De Gerrit van Assendelftstraat ligt op een rustige maar centrale plek in Heemskerk, op korte afstand van het centrum en met uitstekende verbindingen richting de A9. Het NS-station is eenvoudig per fiets bereikbaar en een bushalte ligt op loopafstand. Met vier eigen parkeerplaatsen voor de deur, aangevuld met voldoende parkeergelegenheid in de omgeving, is toegankelijkheid gegarandeerd voor personeel en bezoekers.

Bestemming: 1.51 kantoor: het bedrijfsmatig verlenen van diensten waarbij het publiek niet of slechts in ondergeschikte mate rechtstreeks te woord wordt gestaan en geholpen, waaronder advocatenkantoren, notarissenkantoren, adviesbureaus, administratiekantoren, bankwezen en congres- en vergaderaccommodaties; Bij twijfel over het toestaan van uw bedrijfsvoering adviseren wij u zelf contact op te nemen met de Gemeente Heemskerk.

Dit is een kantoorlocatie die ondernemers rust, overzicht en professionaliteit biedt. Wacht niet te lang als dit aansluit bij jouw plannen. Neem contact met ons op voor een bezichtiging en ervaar zelf de mogelijkheden.

Voorbehoud
- toestemming van en goedkeuring door eigenaar;
- positief kredietinformatierapport ter beoordeling van verhuurder.

Zekerheidsstelling
Een waarborgsom of bankgarantie ter grootte van drie maanden huurverplichting, te vermeerderen met BTW.

Voorwaarden
Alle door Teer Bedrijfsmakelaars verstrekte informatie kan uitsluitend gezien worden als een uitnodiging tot nader overleg c.q. tot het uitbrengen van een bod. Hoewel gestreefd is naar een zo zorgvuldig mogelijke weergave van de beschikbare gegevens, moet er van worden uitgegaan dat bovenstaande slechts indicatief is. De gegevens (bedragen, jaartallen, omschrijvingen, etc.) kunnen zijn verkregen door mondelinge overdracht. Een kandidaat huurder/koper heeft zijn eigen onderzoeksplicht naar alle zaken die voor hem van belang zijn.

Lees meer

Kenmerken

Overdracht
Huurprijs
€ 3.000,- p/m
Status
beschikbaar
Aanvaarding
in overleg
Bouw
Hoofdbestemming
kantoorruimte
Bouwjaar
2012
Bouwperiode
vanaf 2011 tm 2020
Kantoorruimte
Oppervlakte
200 m²
In units vanaf
1 m²
Indicatie turnkey
Ja
Verdiepingen
1
Voorzieningen
Systeemplafond, toilet, pantry, verwarming
Buitenruimte
Ligging
Winkelgebied stadscentrum
Lees meer

Locatie

Vraag een bezichtiging aan