Koningstraat 17A

BEVERWIJK

nieuw

€ 1.795,- p/m

appartement
Bouwjaar 2023
Woonoppervlakte 108 m²
Aantal slaapkamers 2

Omschrijving

ENGLISH TRANSLATION BELOW

Fraai en comfortabel wonen in het centrum van Beverwijk – gerenoveerd 3-kamerappartement

Wonen midden in het bruisende centrum van Beverwijk, in een modern en verzorgd appartement? Aan de vernieuwde Breestraat bieden wij een fraai gerenoveerd appartement te huur aan. Met twee ruime slaapkamers, een lichte woonkamer met grote raampartijen en een moderne open keuken is dit appartement ideaal voor wie comfortabel en centraal wil wonen.

De vernieuwde Breestraat maakt het wonen hier extra aantrekkelijk. De nieuwe bomen, groene beplanting en gezellige zitplekken geven de winkelstraat een prettige, levendige uitstraling. Alle voorzieningen bevinden zich op loopafstand: winkels, supermarkten, horeca, scholen én het trein- en busstation. Ook de uitvalswegen richting de A9 zijn snel bereikbaar.

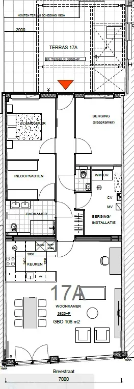
Indeling

De entree van de appartementen bevindt zich aan de Koningstraat. Via het trappenhuis bereikt u de appartementen. Daarnaast is er om de hoek aan de Zeestraat een tweede ingang met lift, die eveneens toegang geeft tot de woningen. In het complex zijn vier ruime bergingen aanwezig, waardoor elk appartement beschikt over een eigen berging.

Via de trap of lift bereikt u de eerste verdieping, vanwaar u toegang heeft tot het appartement aan de zijde van de Breestraat.

Bij binnenkomst treft u een ruime hal die toegang geeft tot alle vertrekken. Het appartement beschikt over twee volwaardige slaapkamers, waarvan één slaapkamer is voorzien van een inloopkast en directe toegang heeft tot de badkamer. In de hal bevindt zich tevens een separaat toilet.

De lichte woonkamer is voorzien van grote raampartijen met een Frans balkon, wat zorgt voor een prettige lichtinval en een levendig uitzicht over de winkelstraat. De moderne open keuken is uitgevoerd met diverse inbouwapparatuur en vormt een fijn geheel met de woonkamer.

Ligging

Het appartement is gelegen op een absolute toplocatie in het centrum van Beverwijk. Winkels, horeca, openbaar vervoer en dagelijkse voorzieningen bevinden zich op loopafstand. Dankzij de centrale ligging en goede bereikbaarheid van uitvalswegen woont u hier comfortabel en praktisch, met alles binnen handbereik.

In het kort
- 3-kamerappartement in het centrum van Beverwijk;
- Twee ruime slaapkamers, waarvan één met inloopkast;
- Lichte woonkamer met Frans balkon;
- Moderne open keuken met inbouwapparatuur;
- Eigen berging aanwezig;
- Deze woning wordt kaal opgeleverd, overname van vloer mogelijk;

Huurvoorwaarden:
- Beschikbaar per 01 april;
- Huurprijs: € 1.795,- per maand;
- Servicekosten: € 50,- per maand;
- Huurperiode van onbepaalde tijd met een minimale huurperiode van 2 jaar;
- Exclusief gas, water en elektra (eigen meters);
- Inkomenseis: minimaal 3,25 keer de bruto maandhuur;
- Huisdieren toegestaan in overleg;
- Financiële screening en goedkeuring door verhuurder van toepassing.

Interesse?

Een bezichtiging kan uitsluitend worden aangevraagd via het inschrijfformulier op de website van Teer. Alleen volledig ingevulde formulieren worden in behandeling genomen. Geselecteerde kandidaten ontvangen een uitnodiging voor een bezichtiging.


========================================================================

English translation

Attractive and comfortable living in the center of Beverwijk – renovated 3-room apartment

Would you like to live right in the vibrant center of Beverwijk, in a modern and well-maintained apartment? On the renovated Breestraat, we offer this attractive refurbished apartment for rent. With two spacious bedrooms, a bright living room with large windows and a modern open-plan kitchen, this apartment is ideal for those seeking comfortable living in a central location.

The renewed Breestraat makes living here even more appealing. Newly planted trees, lush greenery and inviting seating areas give the shopping street a pleasant and lively atmosphere. All amenities are within walking distance, including shops, supermarkets, restaurants, schools, and the train and bus station. The main access roads towards the A9 motorway are also easily accessible.

Layout

The entrance to the apartments is located on Koningstraat. The apartments can be reached via the stairwell. In addition, there is a second entrance around the corner on Zeestraat with an elevator, which also provides access to the apartments. The complex includes four spacious storage units, ensuring that each apartment has its own private storage.

Via the stairs or elevator, you reach the first floor, from which you enter the apartment on the Breestraat side.

Upon entering, you step into a spacious hallway that provides access to all rooms. The apartment features two full-sized bedrooms, one of which includes a walk-in closet and direct access to the bathroom. There is also a separate toilet located in the hallway.

The bright living room has large windows with a French balcony, providing pleasant natural light and a lively view over the shopping street. The modern open-plan kitchen is equipped with various built-in appliances and forms a harmonious whole with the living area.

Location

The apartment is situated in a prime location in the center of Beverwijk. Shops, restaurants, public transport and daily amenities are all within walking distance. Thanks to its central location and excellent access to main roads, this is a practical and comfortable place to live, with everything close at hand.

Key features
- 3-room apartment in the center of Beverwijk;
- Two spacious bedrooms, one with a walk-in closet;
- Bright living room with French balcony;
- Modern open-plan kitchen with built-in appliances;
- Private storage unit available;
- This property will be delivered unfurnished; takeover of the flooring is possible.

Rental conditions
- Available from april 1st;
- Monthly rent: €1.795;
- Service charges: €50 per month;
- Open-ended rental agreement with a minimum rental period of 2 years;
- Utilities (gas, water and electricity) excluded and charged via individual meters;
- Income requirement: at least 3.25 times the gross monthly rent;
- Pets allowed in consultation;
- Financial screening and landlord approval apply.

Interested?

A viewing can only be requested via the registration form on the Teer website. Only fully completed applications will be considered. Selected candidates will receive an invitation for a viewi

Lees meer

Kenmerken

Overdracht
Huurprijs
€ 1.795,- p/m
Status
beschikbaar
Aanvaarding
per datum
VvE checklist
Inschrijving KVK
Nee
Jaarlijkse vergadering
Nee
Periodieke bijdrage
Nee
Reservefonds aanwezig
Nee
Onderhoudsplan
Nee
Opstalverzekering
Nee
Bouw
Soort woning
appartement
Soort appartement
portiekflat
Aantal woonlagen
1
Woonlaag
1
Bouwvorm
nieuwbouw
Bouwjaar
2023
Open portiek
nee
Huidige bestemming
woonruimte
Onderhoud binnen
uitstekend
Onderhoud buiten
uitstekend
Voorzieningen
mechanische ventilatie, tv kabel, lift, natuurlijke ventilatie
Isolatie
volledig geisoleerd
Energie
Energielabel
A++
Verwarming
cv ketel
Warm water
cv ketel
C.V.-ketel
(gas gestookt ketel, uit 2023, eigendom)
Oppervlakten en inhoud
Woonoppervlakte
108 m²
Bergruimte oppervlakte
5 m²
Buitenruimte oppervlakte
12 m²
Indeling
Aantal kamers
3
Aantal slaapkamers
2
Buitenruimte
Ligging
aan rustige weg, in centrum
Tuin
zonneterras met een oppervlakte van 12 m² en is gelegen op het westen
Garage / Schuur / Berging
Garage
geen garage
Parkeergelegenheid
openbaar parkeren, betaald parkeren, parkeervergunningen
Schuur/berging
inpandig
Lees meer

Locatie

Meer weten?

We helpen je graag verder!

Sophie Koole

Sophie Koole

Verhuur

Verhuurmakelaar

Wil je deze woning bezichtigen?

Vul dan het complete inschrijfformulier in.
Wij nemen zo snel mogelijk contact met je op!

Inschrijfformulier invullen

Aanvraagformulier Application form

English?Nederlands?
Gegevens kandidaat huurder Details candidate tenant
Achternaam * Surname *
Voornamen * First name(s) *
Adres * Address *
Postcode * Zipcode *
Woonplaats * City / town *
Geboortedatum * Date of birth *
Geboorteplaats * Place of birth *
Burgelijke staat * Marital status *
Beroep * Profession *
Telefoon * Telephone number *
E-mail *
Gegevens tweede kandidaat huurder Details second candidate tenant
Achternaam Surname
Voornamen First name(s)
Adres Address
Postcode Zipcode
Woonplaats City / town
Geboortedatum Date of birth
Geboorteplaats Place of birth
Burgelijke staat Marital status
Beroep Profession
Telefoon Telephone number
E-mail
Relatie huurder 1 en huurder 2 Relationship between tenant 1 and tenant 2
Met hoeveel kinderen & huisdieren wilt u de woning bewonen? How many children and pets would you like to live in this house with?
Kinderen * Children *
Huisdieren (specificeer) * Pets (please specify) *
Reden van uw verhuizing? Reason for moving?
Jouw antwoord hier * Your answer here *
Bijzonderheden Particularities
Jouw antwoord hier Your answer here
Huidige woonsituatie Current living situation
Koopwoning, huurwoning, inwonend bij ouders, anders? * Homeowner, renter, living with parents, other? *
Wat is je huidige werkstatus? What is your current work status?
Namelijk * Namely *
Looptijd contract (indien van toepassing) Contract length (if applicable)
Van From
Tot To
Is er intentie tot verlening? Is there intent to renew?
Financiële verplichtingen Financial obligations
Bruto jaarinkomen aanvrager 1 * Gross annual income applicant 1 *
Bruto jaarinkomen aanvrager 2 Gross annual income applicant 2
Persoonlijke verplichtingen aanvrager 1+2 * Personal obligations applicants 1+2 *
Spaartegoed totaal * Total savings *